ホーム > 中津駅、中津駅、梅田駅 > 中津インタービル

中津インタービルの賃貸オフィス・貸事務所【募集情報】

最終更新日:2025/10/02
  • 中津インタービル
  • 大阪市北区中津1-17-25
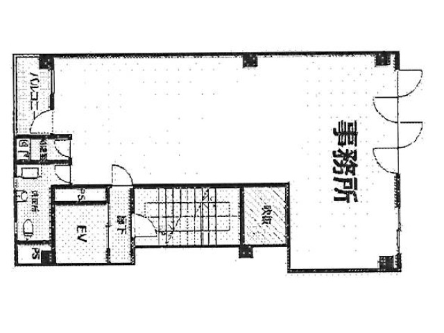
  • 竣工/1992年4月 耐震基準/新耐震基準 基準階面積/26坪 地上9階 地上1階建て
中津インタービルは、大阪市北区中津1丁目の賃貸オフィスビルです。中津駅から徒歩2分と言う駅近立地、1フロア1テナント利用の小型オフィスです。男女トイレ共用なのがネックポイントですが、賃料はリーズナブルです。
1件:募集区画有
SNSでシェアする
  • 中津インタービル外観.jpg
  • 中津インタービル (20).jpg
  • 中津インタービル (21).jpg
  • 中津インタービル (2).jpg
  • 中津インタービル (3).jpg
  • 中津インタービル (4).jpg
  • 中津インタービル (5).jpg
  • 中津インタービル (6).jpg
  • 中津インタービル (7).jpg
  • 中津インタービル (8).jpg
  • 中津インタービル (9).jpg
  • 中津インタービル (10).jpg
  • 中津インタービル (11).jpg
  • 中津インタービル (12).jpg
  • 中津インタービル (13).jpg
  • 中津インタービル (14).jpg
  • 中津インタービル (15).jpg
  • 中津インタービル (16).jpg
  • 中津インタービル (17).jpg
  • 中津インタービル (18).jpg
  • 中津インタービル (19).jpg
※基準階とは、多層の建物で基準になる同じような平面を持つ階のこと。
ご興味のある区画を検討中リストに加え、まとめてお問合せ頂けます。
検討中リスト 面積 賃料+共益費
坪単価
敷金・保証金 入居日 検討中リスト 空室確認日
4階
401
26.34坪
87.08m²
250,230円
9,500円/坪
1ヶ月
2026年4月 2025/10/01
このビルについて問い合わせる 検討中リストへ
お急ぎの方はお電話下さい! 06-6147-9791
検討中リストに加えた物件(募集区画)を
まとめてお問合せ頂けます

当日内見希望もよろこんで!

※管理会社様等、物件側の事情でご希望に沿えない場合もございます。
  • ご希望の募集区画が無い場合、募集が掛かった際にすぐにご紹介いたします。
  • ちなみに、ネット非掲載なだけで、隠し床として存在する場合もございます。
  • 現在の区画を分割するなどして、造れる可能性もございます。
  • 勿論、類似物件のご紹介もご希望頂ければ喜んでさせて頂きます。
当サイトはご入居希望者様向けのサイトです。ご入居に関するお問合せ以外はお答えいたしかねます

中津インタービル物件情報

住所
大阪市北区中津1-17-25
最寄駅
大阪メトロ御堂筋線 中津駅徒歩2分
阪急宝塚本線 中津駅徒歩9分
阪急京都本線 梅田駅徒歩12分
竣工
1992年4月
耐震
新耐震基準
階数
地上9階 地上1階
用途
事務所
構造
S造
エレベーター
1 基
空調
個別空調
OAフロア
タイルカーペット
基準階天井高
2800mm
光ファイバー
無し
トイレ
男女共用・室内
機械警備
有り
駐車場
無し

過去募集していた区画

  • 3階 26.34坪
  • 5階 26.34坪
  • 6階 26.34坪
  • 8階 20.78坪
閉じる
トップヘ戻る