はじめに
近年、大阪のオフィス市場では「セットアップオフィス」という貸し方が急速に広がっています。
家具内装や会議室などをあらかじめ整備した状態で貸し出すことで、テナントの初期投資を抑えつつ、貸主側は賃料単価を引き上げやすいという特徴があります。
その中でも、20坪~30坪程度の区画はセットアップオフィスとの相性が特に良いサイズ帯です。
リーシングの観点、テナントニーズ、投資回収の観点のいずれから見ても合理性が高く、貸主やAMにとって戦略的に検討する価値の高い施策と言えます。
20坪~30坪のオフィスは、レイアウトの最適解がほぼ決まっている
オフィスのセットアップ化で最も重要なのは、「作った内装がテナントニーズとズレないか」という点です。
20坪~30坪のオフィスの場合、入居企業の規模は概ね多くても10名そこそこであることが多く、必要な機能も比較的明確です。
一般的な構成としては以下が挙げられます。
・執務スペース
・会議室が1つか2つ
・簡易的な打合せスペース
さらにセットアップオフィスでは、貸室の形状に合わせて最も効率よくレイアウトすることが可能なため、面積効率を最大化させることができます。
入居企業ごとに内装を設計するのではなく、貸室の形状や動線に最も適したレイアウトを先に設計し、その使い方に適したテナントに入居してもらうという考え方です。
一般的なオフィスでは1人当たり2.5坪~3坪程度になるケースも多いですが、セットアップオフィスでは1人当たり2坪以内に抑えるレイアウトも珍しくありません。
その結果、20坪台でも10席以上の執務席を確保できるケースも多くなります。
20坪~30坪は移転サイクルが早い
この面積帯のオフィスを借りる企業は、
・スタートアップ企業
・成長中の中小企業
・新規拠点(営業所・支店)
といった成長フェーズの企業であるケースが多く見られます。
これらの企業は人員増加や事業拡大に伴い、2~4年程度で移転するケースも珍しくありません。
通常のオフィスでは、
・入居時:内装工事費
・退去時:原状回復費用
という大きなイニシャルコストが発生します。
しかしセットアップオフィスであれば、
・内装工事不要
・原状回復費用が限定的(クリーニングのみが一般的)
となるため、短い移転サイクルと非常に相性が良い商品と言えます。
つまり、この面積帯のテナント層はセットアップオフィスのメリットを最も享受しやすい層とも言えます。
逆に20坪未満のより小さなオフィスとなると、それこそ執務デスクを置くだけで会議室も設けない、と言ったレイアウトも多いため、セットアップオフィスである必要性が減ってきます。
貴重な活動資金を最小化
スタートアップや成長企業にとって、オフィスの内装費用は非常に重く感じられます。
通常のオフィスでは、20坪台でも
・内装工事費:300万~700万円
・家具・什器費用
といった初期投資が発生します。
しかしセットアップオフィスであれば、
・内装費不要
・家具付きであれば什器費用も不要
となり、初期投資を大幅に削減できます。
企業側としても、
「内装に数百万円かけるより、採用や事業投資に回したい」
という判断になることが多く、結果としてセットアップオフィスはリーシング競争力が高い商品となります。
人的コストの削減というメリット
オフィス移転は想像以上に手間がかかるプロジェクトです。
特に20坪台のオフィスを検討する企業の場合、
・社長自ら物件を探している
・移転担当者が初めてのオフィス移転を担当している
といったケースも多く見られます。
空室のオフィスを見て、その後のレイアウトや内装を具体的にイメージすることは、移転経験の豊富な担当者でなければ難しい作業です。
その結果、
・契約後にレイアウトがうまく収まらない(空室は広く感じがちです)
・想定以上に内装費用が膨らむ
・空調や防災設備の位置関係で、希望の場所に会議室を設けられない
・デザインがイメージと違う
といった問題が発生するケースも少なくありません。
一方、セットアップオフィスであれば、完成したオフィスをそのまま内見することができます。
そのため入居後の利用イメージが明確で、レイアウトや内装の失敗リスクがほぼありません。
また、たとえ20坪程度のオフィスであっても、内装工事を行う場合には
・内装業者の選定
・レイアウト打ち合わせ
・見積もり調整
・工事管理
など多くの業務が発生します。
これらは本来の事業とは直接関係のない業務であり、企業にとっては人的コストや時間的コストを圧迫する要因になります。
セットアップオフィスは、こうした負担を大きく軽減できる点でも、成長企業にとって非常に合理的な選択肢と言えます。
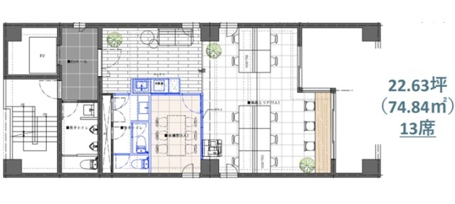
下記のCAMCO肥後橋ビルのセットアップオフィスは、筆者が仲介させて頂いた物件です。
成長著しい企業様に、レンタルオフィスからのご移転先にとお選び頂きました。
この1棟のみ内見、即お申込と、即決して頂きました。
小規模区画ほど差別化が重要になる
賃貸オフィス市場では、基本的に面積が小さい区画ほど競合物件が多くなるという特徴があります。
特に区画を分割して貸し出す文化の強い大阪においては、元から20坪台のお部屋のみならず、分割によってつくられた20坪台のお部屋とも競合することになります。
特に以下のような条件では、競争が激しくなります。
・駅徒歩5分以上
・1フロア100坪未満の小中規模オフィスビル
・築年数が10年以上
・旧耐震基準
このような物件では、差別化ができなければ賃料を下げて募集するしかなくなるケースも少なくありません。
その中で、セットアップオフィスは非常に強力な差別化手段となります。
実際のマーケットでも、
「坪10,000円前後の物件がリニューアルしてセットアップ化することで坪20,000円前後の物件に化けた」
といった事例も珍しくありません。
セットアップオフィス化は、単なる空室対策ではなく、物件の商品力を高める施策としても有効です。
まとめ
20坪台の区画は
・レイアウトの最適解が明確
・面積効率を最大化しやすい
・移転サイクルが短いテナント層が多い
・初期投資削減ニーズが強い
・人的コスト削減メリットが大きい
といった理由から、セットアップオフィスと非常に相性の良いサイズ帯です。
さらに貸主側から見ても、
・物件の差別化
・賃料単価の向上
・レントロール改善
・資産価値向上
といった効果が期待できます。
セットアップオフィスは「空室対策」ではなく、物件の収益力を高める商品戦略とも言えます。
セットアップオフィスのご検討について
セットアップオフィスは、単に内装を整備すれば成功するものではなく、ターゲットテナント、周辺賃料相場、競合物件の状況などを踏まえた設計が重要になります。
当社は賃貸オフィスの仲介会社として日々テナントと接しており、実際にどのようなセットアップオフィスが選ばれているのか、どのような条件で成約しているのかといったマーケット情報を蓄積しています。
また、人気のセットアップオフィスを手掛ける複数の内装会社ともアライアンスを組んでおり、物件やご予算に応じてご紹介することも可能です。
「この物件はセットアップ化すべきか」
「どの程度の投資でどの程度の賃料アップが見込めるのか」
といったご相談がございましたら、お気軽にお問い合わせください。
お問合せ
株式会社クイックコンサルティング 大阪支店
取引態様:媒介 国土交通大臣(4)第7938号
〒550-0004 大阪市西区靱本町1-11-7 信濃橋三井ビル11階
TEL:06-6147-9791 FAX:06-6147-9792
担当:慈幸(じこう) 携帯:080-5681-4211
お問合せの際は「クイック検索大阪を見た」とお伝えください





