グラン堺東ビルの賃貸オフィス・貸事務所【募集情報】
最終更新日:2026/04/06
- グラン堺東ビル
- 堺市中安井町3-2-13
- 竣工/1991年8月 耐震基準/新耐震基準 基準階面積/86坪 地上8階 建て
グラン堺東ビルは、堺東駅から徒歩14分の賃貸オフィスビルです。駅からの距離はネックポイントですが、ビルスペックやや共用のリフレッシュスペースなど、オフィスビルとしてのポイントは高いです。
ご興味のある区画を検討中リストに加え、まとめてお問合せ頂けます。
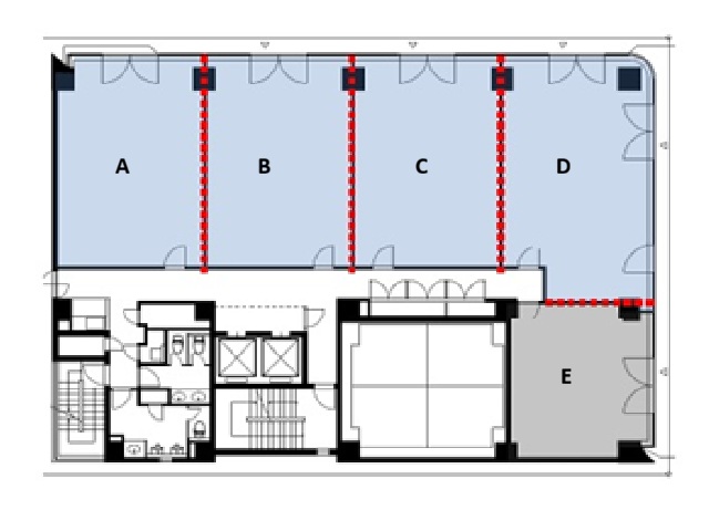
| 検討中リスト | 階 | 面積 | 賃料+共益費 坪単価 |
敷金・保証金 | 入居日 | 検討中リスト | 空室確認日 |
|---|---|---|---|---|---|---|---|
|
3階
D |
15.54坪
51.38m²
|
相談
|
6ヶ月
|
相談 | 2026/04/03 | ||
|
3階
C |
36.29坪
119.97m²
|
相談
|
6ヶ月
|
相談 | 2026/04/03 | ||
|
3階
B |
17.9坪
59.18m²
|
相談
|
6ヶ月
|
相談 | 2026/04/03 | ||
|
3階
A |
17.73坪
58.62m²
|
相談
|
6ヶ月
|
相談 | 2026/04/03 | ||
|
3階
A~D統合 |
87.51坪
289.31m²
|
相談
|
6ヶ月
|
2026年5月 | 2026/04/03 | ||
|
6階
B |
17.9坪
59.18m²
|
相談
|
6ヶ月
|
即日 | 2026/04/03 | ||
|
7階
E |
12.57坪
41.56m²
|
相談
|
6ヶ月
|
即日 | 2026/04/03 | ||
|
8階
A |
17.73坪
58.62m²
|
相談
|
6ヶ月
|
即日 | 2026/04/03 |
当日内見希望もよろこんで!
※管理会社様等、物件側の事情でご希望に沿えない場合もございます。
- ご希望の募集区画が無い場合、募集が掛かった際にすぐにご紹介いたします。
- ちなみに、ネット非掲載なだけで、隠し床として存在する場合もございます。
- 現在の区画を分割するなどして、造れる可能性もございます。
- 勿論、類似物件のご紹介もご希望頂ければ喜んでさせて頂きます。
当サイトはご入居希望者様向けのサイトです。ご入居に関するお問合せ以外はお答えいたしかねます
グラン堺東ビル物件情報
- 住所
- 堺市中安井町3-2-13
- 最寄駅
-
南海高野線(りんかんサンライン) 堺東駅徒歩14分
阪堺電軌阪堺線 宿院駅徒歩13分
阪堺電軌阪堺線 寺地町駅徒歩15分
阪堺電軌阪堺線 大小路駅徒歩16分
阪堺電軌阪堺線 花田口駅徒歩19分 - 竣工
- 1991年8月
- 耐震
- 新耐震基準
- 階数
- 地上8階
- 用途
- 事務所
- 構造
- SRC造
- エレベーター
- 1 基
- 空調
- 個別空調
- OAフロア
- OAフロア
- 基準階天井高
- 光ファイバー
- 有り
- トイレ
- 男女別・室外
- 機械警備
- 有り
- 駐車場
- 有り
過去募集していた区画
- 1階 15.16坪
- 2階 77.22坪
- 5階 36.29坪
- 5階 17.91坪
- 5階 17.73坪
- 6階 17.91坪
- 6階 12.58坪
- 6階 20.52坪
- 6階 17.73坪
- 7階 35.46坪
- 7階 17.81坪
- 7階 20.52坪
- 8階 20.52坪
- 8階 12.58坪
- 8階 17.9坪
- 8階 54.76坪
- 8階 17.91坪






























