由武ビル(ヨシタケビル)の賃貸オフィス・貸事務所【募集情報】
最終更新日:2026/02/18
- 由武ビル(ヨシタケビル)
- 吹田市豊津町1-31
- 竣工/1989年8月 耐震基準/新耐震基準 基準階面積/50坪 地上9階 地下1階建て
1989年竣工の新耐震基準のオフィスビル
大阪市営地下鉄御堂筋線「江坂」駅から徒歩1分の立地
駅チカの物件で10坪からの貸室があるのが特徴です。
機械式の駐車場を備えている物件です。
大阪市営地下鉄御堂筋線「江坂」駅から徒歩1分の立地
駅チカの物件で10坪からの貸室があるのが特徴です。
機械式の駐車場を備えている物件です。
ご興味のある区画を検討中リストに加え、まとめてお問合せ頂けます。
| 検討中リスト | 階 | 面積 | 賃料+共益費 坪単価 |
敷金・保証金 | 入居日 | 検討中リスト | 空室確認日 |
|---|---|---|---|---|---|---|---|
|
5階
A |
21.83坪
72.17m²
|
261,960円
12,000円/坪
|
5ヶ月
|
即日 | 2025/12/03 | ||
|
6階
A |
21.83坪
72.17m²
|
261,960円
12,000円/坪
|
5ヶ月
|
即日 | 2025/12/03 |
当日内見希望もよろこんで!
※管理会社様等、物件側の事情でご希望に沿えない場合もございます。
- ご希望の募集区画が無い場合、募集が掛かった際にすぐにご紹介いたします。
- ちなみに、ネット非掲載なだけで、隠し床として存在する場合もございます。
- 現在の区画を分割するなどして、造れる可能性もございます。
- 勿論、類似物件のご紹介もご希望頂ければ喜んでさせて頂きます。
当サイトはご入居希望者様向けのサイトです。ご入居に関するお問合せ以外はお答えいたしかねます
由武ビル(ヨシタケビル)物件情報
- 住所
- 吹田市豊津町1-31
- 最寄駅
-
大阪メトロ御堂筋線 江坂駅徒歩2分
阪急千里線 豊津駅徒歩21分
阪急千里線 関大前駅徒歩23分
北大阪急行電鉄 緑地公園駅徒歩22分 - 竣工
- 1989年8月
- 耐震
- 新耐震基準
- 階数
- 地上9階 地下1階
- 用途
- 事務所
- 構造
- SRC造
- エレベーター
- 1 基
- 空調
- 個別空調
- OAフロア
- タイルカーペット
- 基準階天井高
- 光ファイバー
- 有り
- トイレ
- 男女別・室外
- 機械警備
- 無し
- 駐車場
- 有り
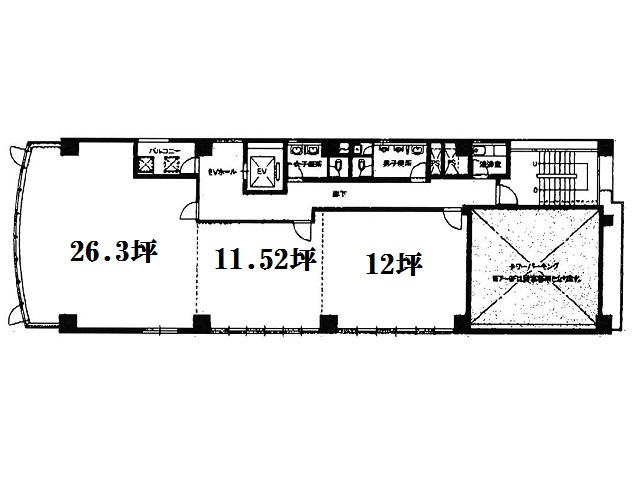
過去募集していた区画
- 2階 49.82坪
- 3階 11.05坪
- 3階 11.96坪
- 3階 11.05坪
- 4階 49.82坪
- 5階 10坪
- 6階 12坪
- 6階 11.05坪
- 8階 23.68坪
- 8階 22.42坪
- 9階 44.81坪



















