あべのハルカスの賃貸オフィス・貸事務所【募集情報】
最終更新日:2026/02/18
- あべのハルカス
- 大阪市阿倍野区阿倍野筋1-1-43
- 竣工/2014年3月 耐震基準/新耐震基準 基準階面積/730坪 地上60階 地下5階建て
あべのハルカスは、日本で最も高い超高層ビルです。商業、オフィス、ホテルの複合ビルで、アクセス面も知名度も抜群です。オフィスビルとしてのスペックも当然に最高レベルですが、特に眺望はプライスレスな価値があります。
「あべのハルカス」には現在公開できる募集区画がございません。最新の募集状況のご確認、もしくは類似物件のご提案は、こちらよりお問い合わせ下さい。
当日内見希望もよろこんで!
※管理会社様等、物件側の事情でご希望に沿えない場合もございます。
- ご希望の募集区画が無い場合、募集が掛かった際にすぐにご紹介いたします。
- ちなみに、ネット非掲載なだけで、隠し床として存在する場合もございます。
- 現在の区画を分割するなどして、造れる可能性もございます。
- 勿論、類似物件のご紹介もご希望頂ければ喜んでさせて頂きます。
当サイトはご入居希望者様向けのサイトです。ご入居に関するお問合せ以外はお答えいたしかねます
あべのハルカス物件情報
- 住所
- 大阪市阿倍野区阿倍野筋1-1-43
- 最寄駅
-
大阪メトロ御堂筋線 天王寺駅徒歩1分
近鉄南大阪線 大阪阿部野橋駅徒歩3分
大阪メトロ谷町線 阿倍野駅徒歩7分 - 竣工
- 2014年3月
- 耐震
- 新耐震基準
- 階数
- 地上60階 地下5階
- 用途
- 事務所
- 構造
- S造
- エレベーター
- 12 基
- 空調
- 個別空調
- OAフロア
- OAフロア
- 基準階天井高
- 2900mm
- 光ファイバー
- 有り
- トイレ
- 男女別・室外
- 機械警備
- 有り
- 駐車場
- 有り
過去募集していた区画
- 18階 140坪
- 22階 56.17坪
- 24階 297.77坪
- 25階 108坪
- 25階 34.67坪
- 27階 57.6坪
- 28階 100.51坪
- 28階 84.26坪
- 28階 106.85坪
- 28階 113坪
- 28階 107坪
- 28階 94.55坪
- 29階 72.43坪
- 29階 169坪
- 29階 113坪
- 29階 57坪
- 29階 106.85坪
- 29階 126.07坪
- 30階 113坪
- 30階 184坪
- 30階 72坪
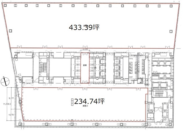
- 31階 433.39坪
- 31階 683.24坪
- 31階 234.74坪
- 32階 32.16坪
- 32階 37.27坪
- 33階 100坪
- 33階 433.39坪
- 33階 433.39坪
- 33階 28.76坪
- 33階 326.54坪
- 33階 112.35坪
- 36階 297.78坪


















