当日内見希望もよろこんで!
※管理会社様等、物件側の事情でご希望に沿えない場合もございます。
- ご希望の募集区画が無い場合、募集が掛かった際にすぐにご紹介いたします。
- ちなみに、ネット非掲載なだけで、隠し床として存在する場合もございます。
- 現在の区画を分割するなどして、造れる可能性もございます。
- 勿論、類似物件のご紹介もご希望頂ければ喜んでさせて頂きます。
当サイトはご入居希望者様向けのサイトです。ご入居に関するお問合せ以外はお答えいたしかねます
NLC森の宮ビル物件情報
- 住所
- 大阪市城東区森之宮1-6-111
- 最寄駅
- JR大阪環状線 森ノ宮駅徒歩1分
- 竣工
- 1994年4月
- 耐震
- 新耐震基準
- 階数
- 地上14階 地下1階
- 用途
- 事務所
- 構造
- S造、一部SRC造
- エレベーター
- 7 基
- 空調
- 個別空調 / セントラル空調
- OAフロア
- OAフロア
- 基準階天井高
- 2700mm
- 光ファイバー
- 有り
- トイレ
- 男女別・室外
- 機械警備
- 有り
- 駐車場
- 有り
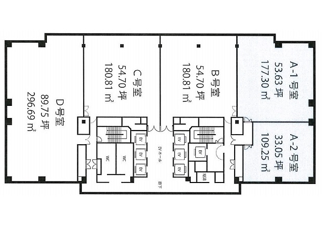
過去募集していた区画
- 5階 54.7坪
- 5階 33.05坪
- 8階 288.89坪
- 9階 199.14坪
- 10階 89.75坪
- 10階 54.7坪
- 10階 288.97坪
- 11階 89.75坪
- 11階 199.14坪
- 12階 144.44坪
- 12階 144.45坪
- 13階 288.89坪
- 13階 54.7坪
- 13階 54.7坪
- 14階 288.89坪
























