カーニープレイス本町ビルの賃貸オフィス・貸事務所【募集情報】
最終更新日:2026/04/03
- カーニープレイス本町ビル
- 大阪市西区阿波座1-6-13
- 竣工/1989年1月 耐震基準/新耐震基準 基準階面積/101坪 地上10階 地上1階建て
カーニープレイス本町ビルは、本町駅から徒歩1分の賃貸オフィスビルです。
駅近かつ中央大通りに面した大型物件です。コンビニもカフェも飲食店も近くにあり、便利な環境です。また、ビルに貸会議室が入っているため、大きい会議室は外部利用し、貸室面積を抑えるという運用も可能です。
駅近かつ中央大通りに面した大型物件です。コンビニもカフェも飲食店も近くにあり、便利な環境です。また、ビルに貸会議室が入っているため、大きい会議室は外部利用し、貸室面積を抑えるという運用も可能です。
ご興味のある区画を検討中リストに加え、まとめてお問合せ頂けます。
| 検討中リスト | 階 | 面積 | 賃料+共益費 坪単価 |
敷金・保証金 | 入居日 | 検討中リスト | 空室確認日 |
|---|---|---|---|---|---|---|---|
|
3階
C |
20坪
66.12m²
|
260,000円
13,000円/坪
|
10ヶ月
|
相談 | 2026/04/03 | ||
|
4階
C |
30坪
99.18m²
|
390,000円
13,000円/坪
|
10ヶ月
|
即日 | 2026/04/03 | ||
|
5階
B |
20坪
66.12m²
|
260,000円
13,000円/坪
|
10ヶ月
|
即日 | 2026/04/03 | ||
|
10階
D |
20坪
66.12m²
|
260,000円
13,000円/坪
|
10ヶ月
|
相談 | 2026/04/03 |
当日内見希望もよろこんで!
※管理会社様等、物件側の事情でご希望に沿えない場合もございます。
- ご希望の募集区画が無い場合、募集が掛かった際にすぐにご紹介いたします。
- ちなみに、ネット非掲載なだけで、隠し床として存在する場合もございます。
- 現在の区画を分割するなどして、造れる可能性もございます。
- 勿論、類似物件のご紹介もご希望頂ければ喜んでさせて頂きます。
当サイトはご入居希望者様向けのサイトです。ご入居に関するお問合せ以外はお答えいたしかねます
カーニープレイス本町ビル物件情報
- 住所
- 大阪市西区阿波座1-6-13
- 最寄駅
-
大阪メトロ四つ橋線 本町駅徒歩1分
大阪メトロ長堀鶴見緑地線 西大橋駅徒歩11分
大阪メトロ長堀鶴見緑地線 心斎橋駅徒歩12分 - 竣工
- 1989年1月
- 耐震
- 新耐震基準
- 階数
- 地上10階 地上1階
- 用途
- 事務所 / 店舗 / その他
- 構造
- SRC造、一部S造
- エレベーター
- 2 基
- 空調
- 個別空調
- OAフロア
- OAフロア
- 基準階天井高
- 2500mm
- 光ファイバー
- 有り
- トイレ
- 男女別・室外
- 機械警備
- 有り
- 駐車場
- 有り
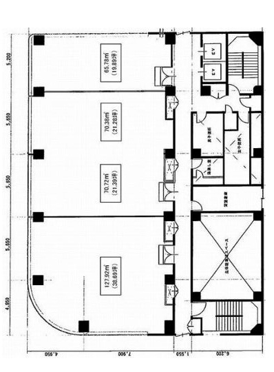
過去募集していた区画
- 1階 22坪
- 2階 48.65坪
- 2階 48.56坪
- 2階 53.64坪
- 2階 38.69坪
- 4階 38.69坪
- 4階 30坪
- 4階 5坪
- 5階 5坪
- 5階 38.69坪
- 6階 22坪
- 6階 5.06坪
- 6階 38.69坪
- 6階 41.19坪
- 6階 22坪
- 7階 21坪
- 7階 20坪
- 7階 21坪
- 8階 5.06坪
- 8階 101.41坪
- 9階 41.19坪
- 9階 22坪
- 9階 38.84坪
- 10階 57.02坪
- 10階 78.29坪
- 10階 100坪
- 10階 19.04坪
- 10階 80坪



















