ご興味のある区画を検討中リストに加え、まとめてお問合せ頂けます。
| 検討中リスト | 階 | 面積 | 賃料+共益費 坪単価 |
敷金・保証金 | 入居日 | 検討中リスト | 空室確認日 |
|---|---|---|---|---|---|---|---|
|
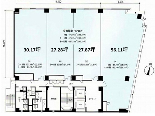
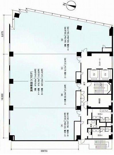
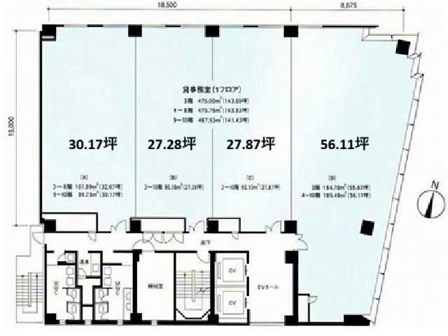
8階
ワンフロア |
143.92坪
475.8m²
|
相談
|
相談
|
2026年4月 | 2026/02/02 | ||
|
9階
|
56.11坪
185.5m²
|
相談
|
相談
|
2026年4月 | 2026/02/02 |
当日内見希望もよろこんで!
※管理会社様等、物件側の事情でご希望に沿えない場合もございます。
- ご希望の募集区画が無い場合、募集が掛かった際にすぐにご紹介いたします。
- ちなみに、ネット非掲載なだけで、隠し床として存在する場合もございます。
- 現在の区画を分割するなどして、造れる可能性もございます。
- 勿論、類似物件のご紹介もご希望頂ければ喜んでさせて頂きます。
当サイトはご入居希望者様向けのサイトです。ご入居に関するお問合せ以外はお答えいたしかねます
肥後橋ルーセントビル物件情報
- 住所
- 大阪市西区京町堀1-6-2
- 最寄駅
-
大阪メトロ四つ橋線 肥後橋駅徒歩2分
大阪メトロ四つ橋線 本町駅徒歩7分 - 竣工
- 1993年2月
- 耐震
- 新耐震基準
- 階数
- 地上11階 地下1階
- 用途
- 事務所
- 構造
- RC造、一部S造
- エレベーター
- 2 基
- 空調
- 個別空調
- OAフロア
- OAフロア / タイルカーペット
- 基準階天井高
- 2600mm
- 光ファイバー
- 有り
- トイレ
- 男女別・室外
- 機械警備
- 有り
- 駐車場
- 有り
過去募集していた区画
- 1階 20.37坪
- 2階 27.27坪
- 2階 27.27坪
- 3階 83.74坪
- 3階 27.27坪
- 3階 32.66坪
- 3階 59.94坪
- 4階 27.27坪
- 4階 32.67坪
- 4階 83.98坪
- 5階 143.92坪
- 5階 59.94坪
- 9階 30.16坪
- 9階 85.3坪
- 9階 30.16坪







