ご興味のある区画を検討中リストに加え、まとめてお問合せ頂けます。
| 検討中リスト | 階 | 面積 | 賃料+共益費 坪単価 |
敷金・保証金 | 入居日 | 検討中リスト | 空室確認日 |
|---|---|---|---|---|---|---|---|
|
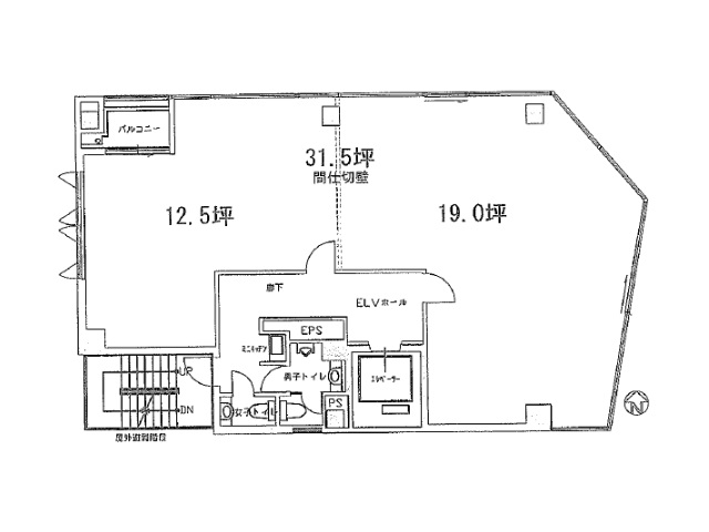
2階
201・202 |
31.5坪
104.14m²
|
472,500円
15,000円/坪
|
1,400,000円
|
相談 | 2026/02/03 | ||
|
6階
602 |
12.5坪
41.33m²
|
187,500円
15,000円/坪
|
600,000円
|
2026年7月 | 2026/02/03 |
当日内見希望もよろこんで!
※管理会社様等、物件側の事情でご希望に沿えない場合もございます。
- ご希望の募集区画が無い場合、募集が掛かった際にすぐにご紹介いたします。
- ちなみに、ネット非掲載なだけで、隠し床として存在する場合もございます。
- 現在の区画を分割するなどして、造れる可能性もございます。
- 勿論、類似物件のご紹介もご希望頂ければ喜んでさせて頂きます。
当サイトはご入居希望者様向けのサイトです。ご入居に関するお問合せ以外はお答えいたしかねます
肥後橋第21松屋ビル物件情報
- 住所
- 大阪市西区江戸堀1-10-1
- 最寄駅
- 大阪メトロ四つ橋線 肥後橋駅徒歩1分
- 竣工
- 2002年7月
- 耐震
- 新耐震基準
- 階数
- 地上11階 地上1階
- 用途
- 事務所 / 店舗
- 構造
- SRC造
- エレベーター
- 1 基
- 空調
- 個別空調
- OAフロア
- OAフロア
- 基準階天井高
- 光ファイバー
- 有り
- トイレ
- 男女別・室外
- 機械警備
- 有り
- 駐車場
- 無し
過去募集していた区画
- 1階 23坪
- 3階 19坪
- 3階 12.5坪
- 4階 31.5坪
- 5階 12.5坪
- 5階 19坪
- 7階 19坪
- 8階 12.5坪
- 9階 12.5坪
- 9階 19坪






