アルテビル肥後橋の賃貸オフィス・貸事務所【募集情報】
最終更新日:2026/03/19
- アルテビル肥後橋
- 大阪市西区江戸堀1-15-27
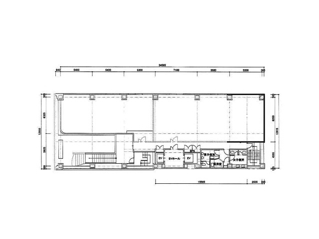
- 竣工/1993年6月 耐震基準/新耐震基準 基準階面積/123坪 地上10階 地下2階建て
アルテビル肥後橋は、肥後橋駅から徒歩2分の賃貸オフィスビルです。駅近の立地と、お洒落にリノベーションされた共用部が魅力的です。周辺には飲食店が多く便利な環境です。
当日内見希望もよろこんで!
※管理会社様等、物件側の事情でご希望に沿えない場合もございます。
- ご希望の募集区画が無い場合、募集が掛かった際にすぐにご紹介いたします。
- ちなみに、ネット非掲載なだけで、隠し床として存在する場合もございます。
- 現在の区画を分割するなどして、造れる可能性もございます。
- 勿論、類似物件のご紹介もご希望頂ければ喜んでさせて頂きます。
当サイトはご入居希望者様向けのサイトです。ご入居に関するお問合せ以外はお答えいたしかねます
アルテビル肥後橋物件情報
- 住所
- 大阪市西区江戸堀1-15-27
- 最寄駅
-
大阪メトロ四つ橋線 肥後橋駅徒歩2分
京阪中之島線 渡辺橋駅徒歩6分
京阪中之島線 大江橋駅徒歩9分
大阪メトロ御堂筋線 淀屋橋駅徒歩6分 - 竣工
- 1993年6月
- 耐震
- 新耐震基準
- 階数
- 地上10階 地下2階
- 用途
- 事務所
- 構造
- SRC造
- エレベーター
- 2 基
- 空調
- 個別空調
- OAフロア
- OAフロア
- 基準階天井高
- 2500mm
- 光ファイバー
- 有り
- トイレ
- 男女別・室外
- 機械警備
- 有り
- 駐車場
- 有り
過去募集していた区画
- 階 110坪
- 階 120坪
- 1階 32.88坪
- 2階 14.74坪
- 2階 99.7坪
- 3階 123.32坪
- 4階 77.37坪
- 4階 123.32坪
- 5階 123.32坪
- 5階 46.13坪
- 6階 123.32坪
- 6階 59.36坪
- 7階 123.32坪
- 9階 59.63坪
- 9階 46.13坪
- 9階 59.63坪
- 9階 28.39坪
- 9階 123.32坪
- 10階 110.79坪


















