エアフォルク阿波座ビルの賃貸オフィス・貸事務所【募集情報】
最終更新日:2026/02/18
- エアフォルク阿波座ビル
- 大阪市西区江之子島1-6-5
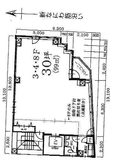
- 竣工/1996年9月 耐震基準/新耐震基準 基準階面積/30坪 地上10階 建て
エアフォルク阿波座ビルは、阿波座駅から徒歩2分の賃貸オフィスビルです。新なにわ筋に面した、角ビルで、採光の良い明るいお部屋です。周辺環境は飲食店も多く、近くにコンビニも有り便利です。
ご興味のある区画を検討中リストに加え、まとめてお問合せ頂けます。
| 検討中リスト | 階 | 面積 | 賃料+共益費 坪単価 |
敷金・保証金 | 入居日 | 検討中リスト | 空室確認日 |
|---|---|---|---|---|---|---|---|
|
3階
|
30坪
99.18m²
|
270,000円
9,000円/坪
|
無し
|
2026年6月 | 2026/02/03 |
当日内見希望もよろこんで!
※管理会社様等、物件側の事情でご希望に沿えない場合もございます。
- ご希望の募集区画が無い場合、募集が掛かった際にすぐにご紹介いたします。
- ちなみに、ネット非掲載なだけで、隠し床として存在する場合もございます。
- 現在の区画を分割するなどして、造れる可能性もございます。
- 勿論、類似物件のご紹介もご希望頂ければ喜んでさせて頂きます。
当サイトはご入居希望者様向けのサイトです。ご入居に関するお問合せ以外はお答えいたしかねます
エアフォルク阿波座ビル物件情報
- 住所
- 大阪市西区江之子島1-6-5
- 最寄駅
-
大阪メトロ中央線 阿波座駅徒歩2分
大阪メトロ長堀鶴見緑地線 西長堀駅徒歩14分
京阪中之島線 中之島駅徒歩15分 - 竣工
- 1996年9月
- 耐震
- 新耐震基準
- 階数
- 地上10階
- 用途
- 事務所
- 構造
- S造
- エレベーター
- 1 基
- 空調
- 個別空調
- OAフロア
- その他
- 基準階天井高
- 光ファイバー
- 有り
- トイレ
- 男女共用・室内
- 機械警備
- 有り
- 駐車場
- 無し
過去募集していた区画
- 1階 22坪
- 4階 30坪
- 5階 30坪
- 6階 30坪
- 7階 30坪
- 8階 30坪
- 9階 30坪
- 9階 30坪
- 10階 30坪






