Doビル新町Ⅱの賃貸オフィス・貸事務所【募集情報】
最終更新日:2026/03/05
- Doビル新町Ⅱ
- 大阪市西区新町2-3-17
- 竣工/1993年7月 耐震基準/新耐震基準
西大橋駅より徒歩5分のオフィスビルです。四ツ橋線の四ツ橋駅も徒歩圏内にございます。周辺は公園があり静かなロケーションです。
ご興味のある区画を検討中リストに加え、まとめてお問合せ頂けます。
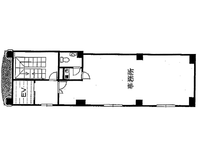
| 検討中リスト | 階 | 面積 | 賃料+共益費 坪単価 |
敷金・保証金 | 入居日 | 検討中リスト | 空室確認日 |
|---|---|---|---|---|---|---|---|
|
1階
|
14.75坪
48.76m²
|
265,500円
18,000円/坪
|
3ヶ月
|
相談 | 2026/03/05 | ||
|
2階
|
14.75坪
48.76m²
|
190,000円
12,881円/坪
|
3ヶ月
|
相談 | 2026/03/05 |
当日内見希望もよろこんで!
※管理会社様等、物件側の事情でご希望に沿えない場合もございます。
- ご希望の募集区画が無い場合、募集が掛かった際にすぐにご紹介いたします。
- ちなみに、ネット非掲載なだけで、隠し床として存在する場合もございます。
- 現在の区画を分割するなどして、造れる可能性もございます。
- 勿論、類似物件のご紹介もご希望頂ければ喜んでさせて頂きます。
当サイトはご入居希望者様向けのサイトです。ご入居に関するお問合せ以外はお答えいたしかねます
Doビル新町Ⅱ物件情報
- 住所
- 大阪市西区新町2-3-17
- 最寄駅
-
大阪メトロ長堀鶴見緑地線 西大橋駅徒歩5分
大阪メトロ四つ橋線 四ツ橋駅徒歩10分
大阪メトロ中央線 阿波座駅徒歩10分
大阪メトロ千日前線 西長堀駅徒歩11分 - 竣工
- 1993年7月
- 耐震
- 新耐震基準
- 階数
- 地上5階
- 用途
- 事務所
- 構造
- S造
- エレベーター
- 1 基
- 空調
- 個別空調
- OAフロア
- タイルカーペット
- 基準階天井高
- 光ファイバー
- 有り
- トイレ
- 男女共用・室内
- 機械警備
- 有り
- 駐車場
- 無し
過去募集していた区画
- 3階 14.75坪
- 5階 14.75坪










