西本町インテスの賃貸オフィス・貸事務所【募集情報】
最終更新日:2026/02/18
- 西本町インテス
- 大阪市西区西本町2-3-10
- 竣工/1990年12月 耐震基準/新耐震基準 基準階面積/256坪 地上18階 地下1階建て
西本町インテスは、大阪市西区西本町2丁目に位置する賃貸オフィスビルで、阿波座駅から徒歩わずか2分という便利なアクセスを誇ります。中央大通りに面しています。周辺は靭公園が近くにあり、都会の喧騒から少し離れた落ち着いた環境が魅力です。ビルは新耐震基準を満たしており、耐震性に優れています。
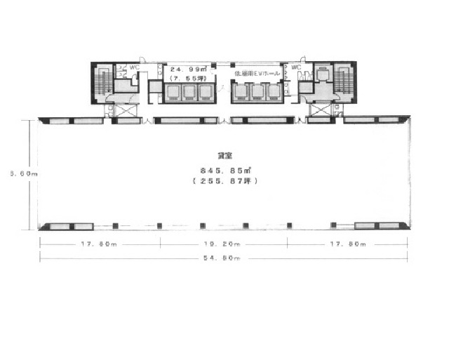
フロアスペックも充実しており、柱のない広々とした貸室空間、天井高は2600㎜、OAフロアが整備されています。また、機械警備が導入されているため、セキュリティ面でも安心です。トイレは2015年にリニューアルされており、清潔感があり快適です。
ビルの外観やエントランスは高級感があり、荷物用エレベーターや大小様々な貸会議室や、お洒落で眺望の良いカフェテリアなどの付帯設備も充実しています。規模が大きく高層のため、企業の信頼感を高めるオフィスとしての価値も高いでしょう。一方で、ビルの立地はなにわ筋よりも西側に位置しているため、オフィス街の中心からは少し離れている点が気になるかもしれませんが、その分グレードに見合ったリーズナブルな賃料が魅力的です。
フロアスペックも充実しており、柱のない広々とした貸室空間、天井高は2600㎜、OAフロアが整備されています。また、機械警備が導入されているため、セキュリティ面でも安心です。トイレは2015年にリニューアルされており、清潔感があり快適です。
ビルの外観やエントランスは高級感があり、荷物用エレベーターや大小様々な貸会議室や、お洒落で眺望の良いカフェテリアなどの付帯設備も充実しています。規模が大きく高層のため、企業の信頼感を高めるオフィスとしての価値も高いでしょう。一方で、ビルの立地はなにわ筋よりも西側に位置しているため、オフィス街の中心からは少し離れている点が気になるかもしれませんが、その分グレードに見合ったリーズナブルな賃料が魅力的です。
ご興味のある区画を検討中リストに加え、まとめてお問合せ頂けます。
| 検討中リスト | 階 | 面積 | 賃料+共益費 坪単価 |
敷金・保証金 | 入居日 | 検討中リスト | 空室確認日 |
|---|---|---|---|---|---|---|---|
|
3階
|
91.47坪
302.4m²
|
相談
|
相談
|
2026年7月 | 2026/02/03 | ||
|
7階
|
97.34坪
321.81m²
|
相談
|
相談
|
2026年6月 | 2026/02/03 | ||
|
7階
コア室 |
7.55坪
24.96m²
|
相談
|
相談
|
2026年6月 | 2026/02/03 |
当日内見希望もよろこんで!
※管理会社様等、物件側の事情でご希望に沿えない場合もございます。
- ご希望の募集区画が無い場合、募集が掛かった際にすぐにご紹介いたします。
- ちなみに、ネット非掲載なだけで、隠し床として存在する場合もございます。
- 現在の区画を分割するなどして、造れる可能性もございます。
- 勿論、類似物件のご紹介もご希望頂ければ喜んでさせて頂きます。
当サイトはご入居希望者様向けのサイトです。ご入居に関するお問合せ以外はお答えいたしかねます
西本町インテス物件情報
- 住所
- 大阪市西区西本町2-3-10
- 最寄駅
-
大阪メトロ中央線 阿波座駅徒歩2分
大阪メトロ四つ橋線 本町駅徒歩6分
大阪メトロ長堀鶴見緑地線 西大橋駅徒歩12分 - 竣工
- 1990年12月
- 耐震
- 新耐震基準
- 階数
- 地上18階 地下1階
- 用途
- 事務所
- 構造
- S造、一部SRC造
- エレベーター
- 7 基
- 空調
- 個別空調 / セントラル空調
- OAフロア
- OAフロア
- 基準階天井高
- 2600mm
- 光ファイバー
- 有り
- トイレ
- 男女別・室外
- 機械警備
- 有り
- 駐車場
- 有り
入居テナント様専用の貸会議室有
西本町インテスビルの18階には、入居テナント様専用の貸会議室が大小合わせて4つ御座います。
会議室の隣には、レストラン「エル・シエロ」
西本町インテスビルの18階には、貸会議室の他に展望レストラン「エル・シエロ」が営業中です。
昼は社員食堂として、夜は夜景の見えるレストランとしてご利用頂けます。100坪を超える広さですので、会社のイベントや懇親会などにも便利そうです。
過去募集していた区画
- 1階 78.47坪
- 3階 173.67坪
- 3階 82.21坪
- 5階 91.47坪
- 8階 82.2坪
- 8階 143.38坪
- 8階 255.87坪
- 10階 82.2坪
- 10階 82.2坪
- 11階 82.2坪
- 11階 82.2坪
- 11階 7.55坪
- 11階 82.2坪
- 11階 173.67坪
- 11階 81.12坪
- 12階 82.2坪
- 13階 173.67坪
- 13階 91.47坪
- 13階 82.2坪
- 14階 269.78坪
- 15階 255.87坪
- 16階 255.87坪
- 18階 97.34坪






















