Osaka Metro南堀江ビルの賃貸オフィス・貸事務所【募集情報】
最終更新日:2026/03/19
- Osaka Metro南堀江ビル
- 大阪市西区南堀江1-18-4
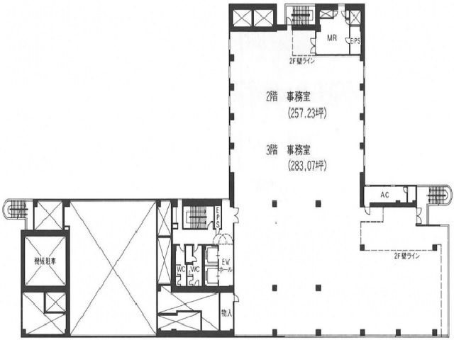
- 竣工/1991年7月 耐震基準/新耐震基準 基準階面積/387坪 地上8階 地下1階建て
Osaka Metro南堀江ビルは、1フロア300坪越えの大規模オフィスビルです。駅近ではございませんが、代わりに周辺環境は静かです。2021年にリニューアル予定ですので、かなり綺麗に生まれ変わります。
当日内見希望もよろこんで!
※管理会社様等、物件側の事情でご希望に沿えない場合もございます。
- ご希望の募集区画が無い場合、募集が掛かった際にすぐにご紹介いたします。
- ちなみに、ネット非掲載なだけで、隠し床として存在する場合もございます。
- 現在の区画を分割するなどして、造れる可能性もございます。
- 勿論、類似物件のご紹介もご希望頂ければ喜んでさせて頂きます。
当サイトはご入居希望者様向けのサイトです。ご入居に関するお問合せ以外はお答えいたしかねます
Osaka Metro南堀江ビル物件情報
- 住所
- 大阪市西区南堀江1-18-4
- 最寄駅
-
大阪メトロ四つ橋線 四ツ橋駅徒歩7分
JR関西本線(大和路線) JR難波駅徒歩6分
大阪メトロ千日前線 桜川駅徒歩9分
近鉄難波線 大阪難波駅徒歩9分
大阪メトロ四つ橋線 なんば駅徒歩6分 - 竣工
- 1991年7月
- 耐震
- 新耐震基準
- 階数
- 地上8階 地下1階
- 用途
- 事務所
- 構造
- SRC造、一部S造
- エレベーター
- 2 基
- 空調
- 個別空調
- OAフロア
- OAフロア
- 基準階天井高
- 2400mm
- 光ファイバー
- 有り
- トイレ
- 男女別・室外
- 機械警備
- 有り
- 駐車場
- 有り
過去募集していた区画
- B1階 11.55坪
- 1階 73.88坪
- 1階 26坪
- 2階 134.48坪
- 2階 124.44坪
- 4階 127.69坪
- 4階 105.1坪
- 5階 27.44坪
- 5階 103.3坪
- 5階 83.67坪
- 5階 128.37坪
- 5階 27.44坪
- 6階 271.22坪
- 6階 54.92坪
- 6階 128.99坪
- 6階 54.07坪
- 7階 271.22坪
- 7階 54.92坪
- 8階 54.92坪
- 8階 224.5坪























