北堀江ゲイトビルの賃貸オフィス・貸事務所【募集情報】
最終更新日:2026/05/19
- 北堀江ゲイトビル
- 大阪市西区北堀江2-2-7
- 竣工/1988年11月 耐震基準/新耐震基準
ご興味のある区画を検討中リストに加え、まとめてお問合せ頂けます。
| 検討中リスト | 階 | 面積 | 賃料+共益費 坪単価 |
敷金・保証金 | 入居日 | 検討中リスト | 空室確認日 |
|---|---|---|---|---|---|---|---|
|
10階
1002 |
15.05坪
49.76m²
|
165,550円
11,000円/坪
|
相談
|
2026年10月 | 2026/05/19 |
当日内見希望もよろこんで!
※管理会社様等、物件側の事情でご希望に沿えない場合もございます。
- ご希望の募集区画が無い場合、募集が掛かった際にすぐにご紹介いたします。
- ちなみに、ネット非掲載なだけで、隠し床として存在する場合もございます。
- 現在の区画を分割するなどして、造れる可能性もございます。
- 勿論、類似物件のご紹介もご希望頂ければ喜んでさせて頂きます。
当サイトはご入居希望者様向けのサイトです。ご入居に関するお問合せ以外はお答えいたしかねます
北堀江ゲイトビル物件情報
- 住所
- 大阪市西区北堀江2-2-7
- 最寄駅
-
大阪メトロ長堀鶴見緑地線 西大橋駅徒歩2分
大阪メトロ四つ橋線 四ツ橋駅徒歩5分
大阪メトロ千日前線 西長堀駅徒歩9分
大阪メトロ長堀鶴見緑地線 心斎橋駅徒歩9分 - 竣工
- 1988年11月
- 耐震
- 新耐震基準
- 階数
- 地上10階 地上1階
- 用途
- 事務所 / 店舗
- 構造
- S造
- エレベーター
- 1 基
- 空調
- 個別空調
- OAフロア
- その他
- 基準階天井高
- 2450mm
- 光ファイバー
- 有り
- トイレ
- 男女別・室外
- 機械警備
- 有り
- 駐車場
- 無し
過去募集していた区画
- B1階 9.87坪
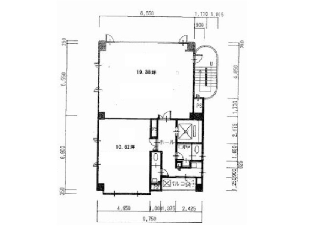
- 4階 10.62坪
- 4階 19.38坪
- 5階 10.62坪
- 5階 30坪
- 5階 19.38坪
- 6階 10.62坪
- 6階 19.38坪
- 7階 10.62坪
- 8階 10.62坪
- 8階 19.38坪
- 10階 10.62坪









