ご興味のある区画を検討中リストに加え、まとめてお問合せ頂けます。
| 検討中リスト | 階 | 面積 | 賃料+共益費 坪単価 |
敷金・保証金 | 入居日 | 検討中リスト | 空室確認日 |
|---|---|---|---|---|---|---|---|
|
5階
|
204坪
674.42m²
|
2,040,000円
10,000円/坪
|
10ヶ月
|
即日 | 2026/04/09 | ||
|
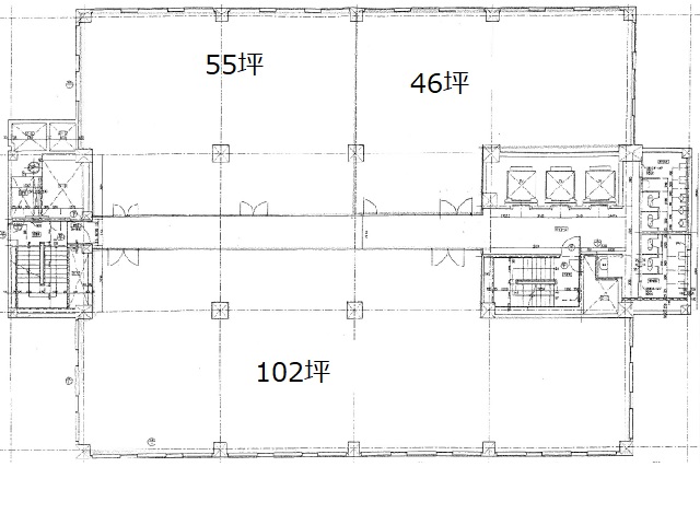
8階
|
102坪
337.21m²
|
1,020,000円
10,000円/坪
|
10ヶ月
|
即日 | 2026/04/09 | ||
|
8階
|
46坪
152.08m²
|
460,000円
10,000円/坪
|
10ヶ月
|
即日 | 2026/04/09 | ||
|
8階
|
55坪
181.83m²
|
550,000円
10,000円/坪
|
10ヶ月
|
即日 | 2026/04/09 | ||
|
9階
|
102坪
337.21m²
|
1,020,000円
10,000円/坪
|
10ヶ月
|
即日 | 2026/04/09 |
当日内見希望もよろこんで!
※管理会社様等、物件側の事情でご希望に沿えない場合もございます。
- ご希望の募集区画が無い場合、募集が掛かった際にすぐにご紹介いたします。
- ちなみに、ネット非掲載なだけで、隠し床として存在する場合もございます。
- 現在の区画を分割するなどして、造れる可能性もございます。
- 勿論、類似物件のご紹介もご希望頂ければ喜んでさせて頂きます。
当サイトはご入居希望者様向けのサイトです。ご入居に関するお問合せ以外はお答えいたしかねます
三木産業ビル物件情報
- 住所
- 大阪市西区北堀江3-12-23
- 最寄駅
- 大阪メトロ千日前線 西長堀駅徒歩1分
- 竣工
- 1974年4月
- 耐震
- 耐震補強済
- 階数
- 地上9階 地下2階
- 用途
- 事務所
- 構造
- SRC造
- エレベーター
- 3 基
- 空調
- セントラル空調
- OAフロア
- その他
- 基準階天井高
- 2450mm
- 光ファイバー
- 有り
- トイレ
- 男女別・室外
- 機械警備
- 有り
- 駐車場
- 有り
過去募集していた区画
- 2階 204坪
- 6階 204坪
- 7階 27.85坪
- 7階 46坪
- 7階 55坪
- 9階 102坪

















