京阪神瓦町ビルの賃貸オフィス・貸事務所【募集情報】
最終更新日:2026/03/03
- 京阪神瓦町ビル
- 大阪市中央区瓦町4-2-14
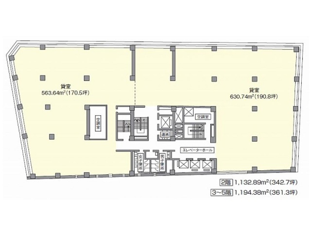
- 竣工/1961年7月 耐震基準/新耐震基準相当 基準階面積/361坪 地上9階 地下3階建て
京阪神瓦町ビルは、大阪市中央区瓦町4-2-14に位置し、御堂筋沿いにある便利なオフィスビルです。本町駅から徒歩3分という好立地で、大阪ビジネス街の中心にあり、銀行や飲食店が豊富に揃っているため、ビジネス環境として非常に優れています。また、ビルの1階には郵便局があり、地下には食堂も備わっており、日常的な業務や食事にも便利な環境が整っています。
ビルは新耐震基準相当を満たしており、平成11年には全館リニューアルが行われているため、建物全体が快適に維持されています。エントランスは石造りで、古いビルならではの重厚感と風格を感じさせ、来訪者に良い印象を与えます。フロアの天井高は2500㎜と低めですが、LED照明により明るく圧迫感や軽減されています。OAフロアのためオフィスレイアウトの自由度も高めです。セキュリティ対策として機械警備も導入され、安心して利用できる点も魅力です。
エレベーターは4基設置されており、荷物用エレベーターも完備されているため、オフィス内外の移動や荷物の搬入もスムーズに行えます。大通り沿いにありながら、賃料はリーズナブルに設定されており、コストパフォーマンスに優れた物件です。リニューアル後も良好な管理が行われており、快適で使いやすいオフィス環境を提供しています。
ビルは新耐震基準相当を満たしており、平成11年には全館リニューアルが行われているため、建物全体が快適に維持されています。エントランスは石造りで、古いビルならではの重厚感と風格を感じさせ、来訪者に良い印象を与えます。フロアの天井高は2500㎜と低めですが、LED照明により明るく圧迫感や軽減されています。OAフロアのためオフィスレイアウトの自由度も高めです。セキュリティ対策として機械警備も導入され、安心して利用できる点も魅力です。
エレベーターは4基設置されており、荷物用エレベーターも完備されているため、オフィス内外の移動や荷物の搬入もスムーズに行えます。大通り沿いにありながら、賃料はリーズナブルに設定されており、コストパフォーマンスに優れた物件です。リニューアル後も良好な管理が行われており、快適で使いやすいオフィス環境を提供しています。
ご興味のある区画を検討中リストに加え、まとめてお問合せ頂けます。
| 検討中リスト | 階 | 面積 | 賃料+共益費 坪単価 |
敷金・保証金 | 入居日 | 検討中リスト | 空室確認日 |
|---|---|---|---|---|---|---|---|
|
8階
先行有 |
191.44坪
632.9m²
|
相談
|
12ヶ月
|
2026年10月 | 2026/03/03 |
当日内見希望もよろこんで!
※管理会社様等、物件側の事情でご希望に沿えない場合もございます。
- ご希望の募集区画が無い場合、募集が掛かった際にすぐにご紹介いたします。
- ちなみに、ネット非掲載なだけで、隠し床として存在する場合もございます。
- 現在の区画を分割するなどして、造れる可能性もございます。
- 勿論、類似物件のご紹介もご希望頂ければ喜んでさせて頂きます。
当サイトはご入居希望者様向けのサイトです。ご入居に関するお問合せ以外はお答えいたしかねます
京阪神瓦町ビル物件情報
- 住所
- 大阪市中央区瓦町4-2-14
- 最寄駅
-
大阪メトロ御堂筋線 本町駅徒歩3分
大阪メトロ中央線 堺筋本町駅徒歩10分
大阪メトロ御堂筋線 淀屋橋駅徒歩10分
大阪メトロ四つ橋線 肥後橋駅徒歩10分 - 竣工
- 1961年7月
- 耐震
- 新耐震基準相当
- 階数
- 地上9階 地下3階
- 用途
- 事務所
- 構造
- S造
- エレベーター
- 4 基
- 空調
- 個別空調 / セントラル空調
- OAフロア
- OAフロア
- 基準階天井高
- 2500mm
- 光ファイバー
- 有り
- トイレ
- 男女別・室外
- 機械警備
- 有り
- 駐車場
- 有り
過去募集していた区画
- 2階 342.7坪
- 2階 280.1坪
- 2階 162.2坪
- 2階 129.65坪
- 3階 169.6坪
- 5階 72.79坪
- 6階 299.8坪
- 7階 56.55坪
- 7階 243.25坪
- 7階 83.72坪
- 8階 108.36坪
- 9階 119.04坪



















