松浦堺筋本町ビルの賃貸オフィス・貸事務所【募集情報】
最終更新日:2026/02/18
- 松浦堺筋本町ビル
- 大阪市中央区久太郎町1-9-28
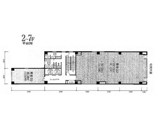
- 竣工/1987年8月 耐震基準/新耐震基準 基準階面積/66坪 地上10階 地下1階建て
松浦堺筋本町ビルは、堺筋本町駅から徒歩1分、中央通りに面した賃貸オフィスビルです。使い勝手の良い長方形の貸室、飲食店等も多い利便性の高い周辺環境が魅力です。入居者様用の貸会議室有。
「松浦堺筋本町ビル」には現在公開できる募集区画がございません。最新の募集状況のご確認、もしくは類似物件のご提案は、こちらよりお問い合わせ下さい。
当日内見希望もよろこんで!
※管理会社様等、物件側の事情でご希望に沿えない場合もございます。
- ご希望の募集区画が無い場合、募集が掛かった際にすぐにご紹介いたします。
- ちなみに、ネット非掲載なだけで、隠し床として存在する場合もございます。
- 現在の区画を分割するなどして、造れる可能性もございます。
- 勿論、類似物件のご紹介もご希望頂ければ喜んでさせて頂きます。
当サイトはご入居希望者様向けのサイトです。ご入居に関するお問合せ以外はお答えいたしかねます
松浦堺筋本町ビル物件情報
- 住所
- 大阪市中央区久太郎町1-9-28
- 最寄駅
-
大阪メトロ中央線 堺筋本町駅徒歩1分
大阪メトロ御堂筋線 本町駅徒歩10分
大阪メトロ長堀鶴見緑地線 長堀橋駅徒歩10分 - 竣工
- 1987年8月
- 耐震
- 新耐震基準
- 階数
- 地上10階 地下1階
- 用途
- 事務所
- 構造
- SRC造
- エレベーター
- 2 基
- 空調
- 個別空調
- OAフロア
- OAフロア
- 基準階天井高
- 2400mm
- 光ファイバー
- 有り
- トイレ
- 男女別・室外
- 機械警備
- 有り
- 駐車場
- 無し
過去募集していた区画
- B1階 42.24坪
- 2階 49.93坪
- 2階 12坪
- 3階 19.87坪
- 3階 12.87坪
- 3階 14.62坪
- 4階 53.77坪
- 4階 53.77坪
- 4階 12.87坪
- 6階 12.87坪
- 6階 53.77坪
















