ご興味のある区画を検討中リストに加え、まとめてお問合せ頂けます。
| 検討中リスト | 階 | 面積 | 賃料+共益費 坪単価 |
敷金・保証金 | 入居日 | 検討中リスト | 空室確認日 |
|---|---|---|---|---|---|---|---|
|
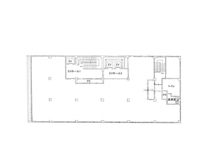
3階
|
132.89坪
439.33m²
|
1,328,900円
10,000円/坪
|
10ヶ月
|
即日 | 2026/03/05 | ||
|
6階
|
53.88坪
178.13m²
|
538,800円
10,000円/坪
|
10ヶ月
|
相談 | 2026/03/05 |
当日内見希望もよろこんで!
※管理会社様等、物件側の事情でご希望に沿えない場合もございます。
- ご希望の募集区画が無い場合、募集が掛かった際にすぐにご紹介いたします。
- ちなみに、ネット非掲載なだけで、隠し床として存在する場合もございます。
- 現在の区画を分割するなどして、造れる可能性もございます。
- 勿論、類似物件のご紹介もご希望頂ければ喜んでさせて頂きます。
当サイトはご入居希望者様向けのサイトです。ご入居に関するお問合せ以外はお答えいたしかねます
五味ビル物件情報
- 住所
- 大阪市中央区久太郎町2-5-13
- 最寄駅
-
大阪メトロ中央線 堺筋本町駅徒歩5分
大阪メトロ御堂筋線 本町駅徒歩8分 - 竣工
- 1959年
- 耐震
- 旧耐震基準
- 階数
- 地上6階 地下1階
- 用途
- 事務所 / 店舗
- 構造
- RC造
- エレベーター
- 3 基
- 空調
- 個別空調
- OAフロア
- その他
- 基準階天井高
- 光ファイバー
- 無し
- トイレ
- 男女別・室外
- 機械警備
- 有り
- 駐車場
- 無し
過去募集していた区画
- 1階 114.25坪
- 一棟 635.81坪
- 2階 129.85坪
- 4階 71.24坪
- 4階 55.31坪
- 4階 126.55坪
- 5階 132.89坪
- 6階 8.83坪











