北浜山富ビルの賃貸オフィス・貸事務所【募集情報】
最終更新日:2026/03/18
- 北浜山富ビル
- 大阪市中央区今橋1-7-2
- 竣工/1993年3月 耐震基準/新耐震基準
当日内見希望もよろこんで!
※管理会社様等、物件側の事情でご希望に沿えない場合もございます。
- ご希望の募集区画が無い場合、募集が掛かった際にすぐにご紹介いたします。
- ちなみに、ネット非掲載なだけで、隠し床として存在する場合もございます。
- 現在の区画を分割するなどして、造れる可能性もございます。
- 勿論、類似物件のご紹介もご希望頂ければ喜んでさせて頂きます。
当サイトはご入居希望者様向けのサイトです。ご入居に関するお問合せ以外はお答えいたしかねます
北浜山富ビル物件情報
- 住所
- 大阪市中央区今橋1-7-2
- 最寄駅
-
大阪メトロ堺筋線 北浜駅徒歩2分
京阪中之島線 なにわ橋駅徒歩-1分
大阪メトロ御堂筋線 淀屋橋駅徒歩-1分 - 竣工
- 1993年3月
- 耐震
- 新耐震基準
- 階数
- 地上7階
- 用途
- 事務所
- 構造
- RC造
- エレベーター
- 1 基
- 空調
- 個別空調
- OAフロア
- OAフロア相談可 / その他
- 基準階天井高
- 光ファイバー
- 無し
- トイレ
- 男女別・室外
- 機械警備
- 無し
- 駐車場
- 無し
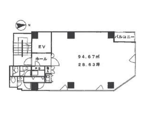
過去募集していた区画
- 3階 28.63坪
- 4階 28.63坪
- 5階 28.63坪
- 6階 28.63坪
- 7階 16坪


















