ご興味のある区画を検討中リストに加え、まとめてお問合せ頂けます。
| 検討中リスト | 階 | 面積 | 賃料+共益費 坪単価 |
敷金・保証金 | 入居日 | 検討中リスト | 空室確認日 |
|---|---|---|---|---|---|---|---|
|
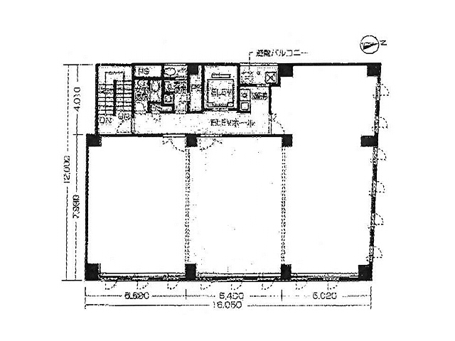
5階
502 |
15.2坪
50.25m²
|
148,960円
9,800円/坪
|
700,000円
|
2026年10月 | 2026/04/07 |
当日内見希望もよろこんで!
※管理会社様等、物件側の事情でご希望に沿えない場合もございます。
- ご希望の募集区画が無い場合、募集が掛かった際にすぐにご紹介いたします。
- ちなみに、ネット非掲載なだけで、隠し床として存在する場合もございます。
- 現在の区画を分割するなどして、造れる可能性もございます。
- 勿論、類似物件のご紹介もご希望頂ければ喜んでさせて頂きます。
当サイトはご入居希望者様向けのサイトです。ご入居に関するお問合せ以外はお答えいたしかねます
フレックス大手前ビル物件情報
- 住所
- 大阪市中央区船越町1-3-6
- 最寄駅
- 大阪メトロ谷町線 天満橋駅徒歩5分
- 竣工
- 1998年7月
- 耐震
- 新耐震基準
- 階数
- 地上8階 地下1階
- 用途
- 事務所
- 構造
- S造、一部RC造
- エレベーター
- 1 基
- 空調
- 個別空調
- OAフロア
- OAフロア
- 基準階天井高
- 2500mm
- 光ファイバー
- 有り
- トイレ
- 男女別・室外
- 機械警備
- 有り
- 駐車場
- 有り
過去募集していた区画
- 1階 17.23坪
- 1階 20.69坪
- 2階 54.25坪
- 3階 31.05坪
- 4階 15.2坪
- 4階 15.85坪
- 6階 38.4坪
- 7階 19.68坪
- 7階 11.36坪







