当日内見希望もよろこんで!
※管理会社様等、物件側の事情でご希望に沿えない場合もございます。
- ご希望の募集区画が無い場合、募集が掛かった際にすぐにご紹介いたします。
- ちなみに、ネット非掲載なだけで、隠し床として存在する場合もございます。
- 現在の区画を分割するなどして、造れる可能性もございます。
- 勿論、類似物件のご紹介もご希望頂ければ喜んでさせて頂きます。
当サイトはご入居希望者様向けのサイトです。ご入居に関するお問合せ以外はお答えいたしかねます
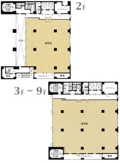
NSビル物件情報
- 住所
- 大阪市中央区谷町2-2-22
- 最寄駅
- 京阪本線 天満橋駅徒歩5分
- 竣工
- 1986年1月
- 耐震
- 新耐震基準
- 階数
- 地上10階 地上1階
- 用途
- 事務所
- 構造
- S造
- エレベーター
- 2 基
- 空調
- 個別空調
- OAフロア
- その他
- 基準階天井高
- 2550mm
- 光ファイバー
- 有り
- トイレ
- 男女別・室外
- 機械警備
- 有り
- 駐車場
- 有り
過去募集していた区画
- 4階 115.2坪
- 4階 50坪
- 5階 66坪
- 5階 50坪
- 6階 12坪
- 6階 14坪
- 8階 66坪
- 9階 54.5坪








