谷町ビルの賃貸オフィス・貸事務所【募集情報】
最終更新日:2026/03/19
- 谷町ビル
- 大阪市中央区谷町2-6-4
- 竣工/1993年4月 耐震基準/新耐震基準 基準階面積/172坪 地上9階 地下1階建て
谷町ビルは、天満橋駅から徒歩3分の駅近大型オフィスビルです。谷町筋に面した角ビルで、存在感は十分です。エントランスやEVホールも石造りで高級感がございます。
当日内見希望もよろこんで!
※管理会社様等、物件側の事情でご希望に沿えない場合もございます。
- ご希望の募集区画が無い場合、募集が掛かった際にすぐにご紹介いたします。
- ちなみに、ネット非掲載なだけで、隠し床として存在する場合もございます。
- 現在の区画を分割するなどして、造れる可能性もございます。
- 勿論、類似物件のご紹介もご希望頂ければ喜んでさせて頂きます。
当サイトはご入居希望者様向けのサイトです。ご入居に関するお問合せ以外はお答えいたしかねます
谷町ビル物件情報
- 住所
- 大阪市中央区谷町2-6-4
- 最寄駅
-
大阪メトロ谷町線 天満橋駅徒歩3分
大阪メトロ谷町線 谷町四丁目駅徒歩5分 - 竣工
- 1993年4月
- 耐震
- 新耐震基準
- 階数
- 地上9階 地下1階
- 用途
- 事務所
- 構造
- RC造
- エレベーター
- 2 基
- 空調
- 個別空調
- OAフロア
- その他
- 基準階天井高
- 光ファイバー
- 有り
- トイレ
- 男女別・室外
- 機械警備
- 有り
- 駐車場
- 無し
過去募集していた区画
- 2階 43.67坪
- 2階 43.67坪
- 3階 142坪
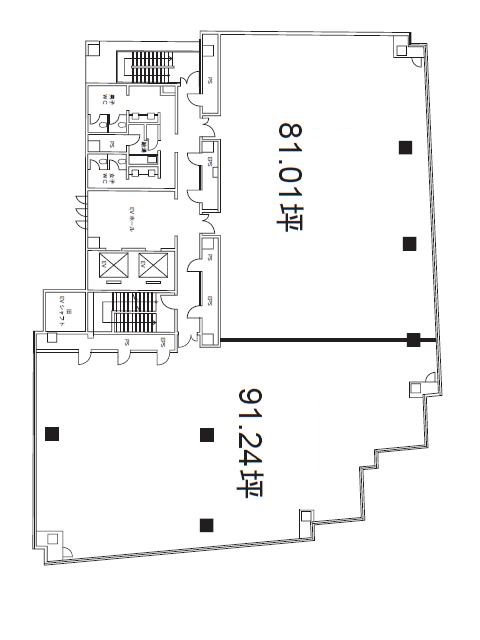
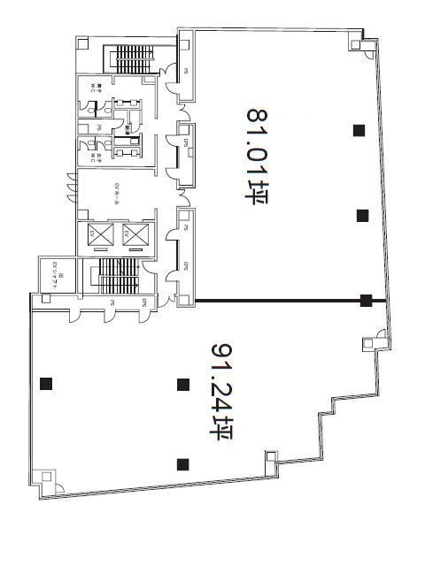
- 4階 91.24坪
- 4階 81.01坪
- 4階 51.45坪
- 4階 29.56坪
- 4階 172.25坪
- 4階 81.01坪
- 5階 172.25坪
- 6階 172.25坪
- 7階 116.86坪
- 7階 172.25坪
- 8階 172.25坪
- 9階 129.64坪
- 9階 169.55坪
















