淡路町ビル21の賃貸オフィス・貸事務所【募集情報】
最終更新日:2026/04/02
- 淡路町ビル21
- 大阪市中央区淡路町3-1-5
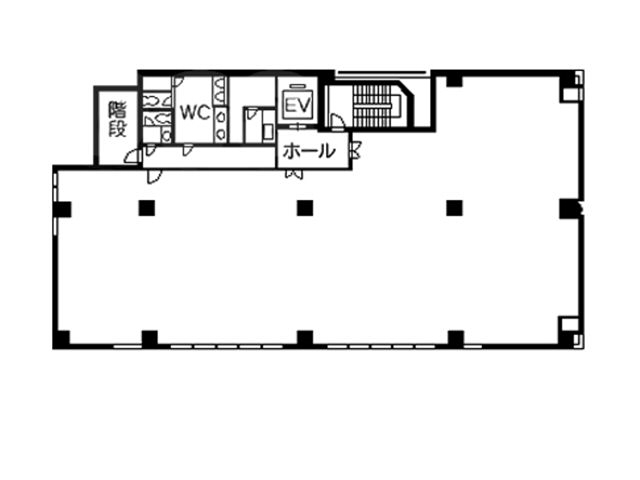
- 竣工/1986年8月 耐震基準/新耐震基準 基準階面積/88坪 地上10階 地下1階建て
淡路町ビル21は、アクセス面に優れた賃貸オフィスビルです。淀屋橋駅、北浜駅、本町駅、堺筋本町駅の中心に位置し、いずれの駅へも約徒歩5分の立地となります。
ご興味のある区画を検討中リストに加え、まとめてお問合せ頂けます。
| 検討中リスト | 階 | 面積 | 賃料+共益費 坪単価 |
敷金・保証金 | 入居日 | 検討中リスト | 空室確認日 |
|---|---|---|---|---|---|---|---|
|
7階
|
36.39坪
120.31m²
|
相談
|
相談
|
即日 | 2026/04/02 | ||
|
8階
|
87.73坪
290.04m²
|
相談
|
相談
|
即日 | 2026/04/02 |
当日内見希望もよろこんで!
※管理会社様等、物件側の事情でご希望に沿えない場合もございます。
- ご希望の募集区画が無い場合、募集が掛かった際にすぐにご紹介いたします。
- ちなみに、ネット非掲載なだけで、隠し床として存在する場合もございます。
- 現在の区画を分割するなどして、造れる可能性もございます。
- 勿論、類似物件のご紹介もご希望頂ければ喜んでさせて頂きます。
当サイトはご入居希望者様向けのサイトです。ご入居に関するお問合せ以外はお答えいたしかねます
淡路町ビル21物件情報
- 住所
- 大阪市中央区淡路町3-1-5
- 最寄駅
-
京阪本線 淀屋橋駅徒歩5分
大阪メトロ四つ橋線 本町駅徒歩5分
大阪メトロ堺筋線 北浜駅徒歩9分 - 竣工
- 1986年8月
- 耐震
- 新耐震基準
- 階数
- 地上10階 地下1階
- 用途
- 事務所 / 倉庫・工場
- 構造
- SRC造、一部RC造
- エレベーター
- 1 基
- 空調
- 個別空調
- OAフロア
- その他
- 基準階天井高
- 2440mm
- 光ファイバー
- 無し
- トイレ
- 男女別・室外
- 機械警備
- 無し
- 駐車場
- 有り
過去募集していた区画
- 1階 51.31坪
- 3階 66.94坪
- 7階 24.25坪
- 7階 36.39坪
- 7階 97.62坪
- 7階 23.22坪
- 7階 83.52坪
- 7階 36.05坪
- 8階 87.94坪
- 8階 87.73坪
- 9階 78.6坪
- 10階 68.4坪
- 10階 31.4坪
- 10階 14.53坪
- 10階 53.87坪
- 10階 68.7坪
- 10階 16.87坪
- 10階 37坪























