創建御堂筋ビルの賃貸オフィス・貸事務所【募集情報】
最終更新日:2026/02/18
- 創建御堂筋ビル
- 大阪市中央区淡路町3-5-13
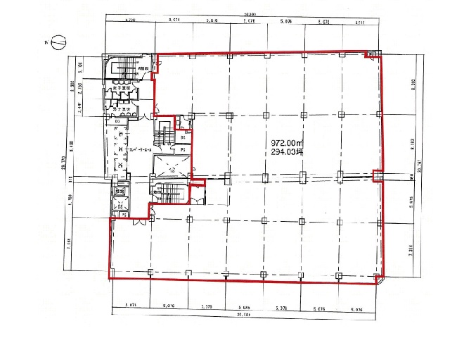
- 竣工/1968年5月 耐震基準/旧耐震基準 基準階面積/276坪 地上9階 地下2階建て
創建御堂筋ビルは、大阪市中央区淡路町3-5-13に位置し、御堂筋沿いの便利なロケーションが魅力的です。最寄りの淀屋橋駅から徒歩6分と、交通アクセスに優れており、銀行や郵便局がすぐ近くにあるほか、周辺には多くの飲食店が立ち並ぶ大阪のビジネス街の中心にあります。ビルの1階にはコンビニがあり、日常的な買い物や業務中のちょっとした用事を簡単に済ませることができます。
本ビルは旧耐震基準に準拠していますが、管理状況は良好で、貸主も入居しているため、リニューアルも含めたメンテナンスがしっかりと行われています。老舗ビルならではの重厚感のある外観とエントランスも魅力的です。OAフロアを備えており、オフィスのレイアウト自由度が高く、機能的な空間が広がります。さらに、機械警備が導入されており、セキュリティ面での安心感もあります。
ビルの設備ではなく入居テナントとしてですが、貸し会議室やレンタルオフィスが入っているため、スペースに対する柔軟な対応が可能です。また、貸自転車も用意されており、通勤や近隣への移動がスムーズに行える点も大きな魅力です。古いビルではありますが、管理状態の良さとリニューアルの手入れにより、快適なオフィス環境が保たれています。賃料はリーズナブルで、コストパフォーマンスに優れており、ビジネス拠点としての選択肢にぜひご検討ください。
本ビルは旧耐震基準に準拠していますが、管理状況は良好で、貸主も入居しているため、リニューアルも含めたメンテナンスがしっかりと行われています。老舗ビルならではの重厚感のある外観とエントランスも魅力的です。OAフロアを備えており、オフィスのレイアウト自由度が高く、機能的な空間が広がります。さらに、機械警備が導入されており、セキュリティ面での安心感もあります。
ビルの設備ではなく入居テナントとしてですが、貸し会議室やレンタルオフィスが入っているため、スペースに対する柔軟な対応が可能です。また、貸自転車も用意されており、通勤や近隣への移動がスムーズに行える点も大きな魅力です。古いビルではありますが、管理状態の良さとリニューアルの手入れにより、快適なオフィス環境が保たれています。賃料はリーズナブルで、コストパフォーマンスに優れており、ビジネス拠点としての選択肢にぜひご検討ください。
ご興味のある区画を検討中リストに加え、まとめてお問合せ頂けます。
| 検討中リスト | 階 | 面積 | 賃料+共益費 坪単価 |
敷金・保証金 | 入居日 | 検討中リスト | 空室確認日 |
|---|---|---|---|---|---|---|---|
|
3階
|
21.36坪
70.62m²
|
320,400円
15,000円/坪
|
6ヶ月
|
即日 | 2026/01/19 | ||
|
7階
|
13.27坪
43.87m²
|
212,320円
16,000円/坪
|
相談
|
2026年4月 | 2026/01/19 | ||
|
9階
|
14.15坪
46.78m²
|
226,400円
16,000円/坪
|
6ヶ月
|
2026年5月 | 2026/01/19 | ||
|
9階
|
29.91坪
98.88m²
|
448,650円
15,000円/坪
|
6ヶ月
|
即日 | 2026/01/19 |
当日内見希望もよろこんで!
※管理会社様等、物件側の事情でご希望に沿えない場合もございます。
- ご希望の募集区画が無い場合、募集が掛かった際にすぐにご紹介いたします。
- ちなみに、ネット非掲載なだけで、隠し床として存在する場合もございます。
- 現在の区画を分割するなどして、造れる可能性もございます。
- 勿論、類似物件のご紹介もご希望頂ければ喜んでさせて頂きます。
当サイトはご入居希望者様向けのサイトです。ご入居に関するお問合せ以外はお答えいたしかねます
創建御堂筋ビル物件情報
- 住所
- 大阪市中央区淡路町3-5-13
- 最寄駅
-
大阪メトロ御堂筋線 淀屋橋駅徒歩6分
大阪メトロ御堂筋線 本町駅徒歩6分
大阪メトロ堺筋線 北浜駅徒歩12分
大阪メトロ四つ橋線 肥後橋駅徒歩11分 - 竣工
- 1968年5月
- 耐震
- 旧耐震基準
- 階数
- 地上9階 地下2階
- 用途
- 事務所 / 店舗
- 構造
- SRC造
- エレベーター
- 3 基
- 空調
- 個別空調
- OAフロア
- OAフロア相談可 / タイルカーペット
- 基準階天井高
- 2500mm
- 光ファイバー
- 有り
- トイレ
- 男女別・室外
- 機械警備
- 有り
- 駐車場
- 有り
過去募集していた区画
- 1階 175坪
- 1階 10.58坪
- 2階 202.51坪
- 3階 43.81坪
- 3階 51坪
- 3階 21.36坪
- 3階 49.89坪
- 3階 10坪
- 3階 28.3坪
- 3階 34.01坪
- 4階 82.57坪
- 4階 39.63坪
- 4階 31.36坪
- 4階 96.49坪
- 4階 188.87坪
- 4階 122.21坪
- 4階 13.39坪
- 4階 108.51坪
- 4階 53.29坪
- 6階 211.93坪
- 6階 276.13坪
- 7階 64.19坪
- 7階 19.89坪
- 7階 23.76坪
- 7階 28.17坪
- 7階 13.91坪
- 7階 28.43坪
- 7階 28.17坪
- 7階 88.02坪
- 7階 36.09坪
- 7階 33.55坪
- 8階 223.32坪
- 8階 184.82坪
- 9階 10.33坪
- 9階 21.08坪
- 9階 41.48坪

















