京阪神御堂筋ビルの賃貸オフィス・貸事務所【募集情報】
- 京阪神御堂筋ビル
- 大阪市中央区道修町3-6-1
- 竣工/2007年2月 耐震基準/新耐震基準 基準階面積/317坪 地上14階 地下1階建て
御堂筋に面したハイスペックビル。最新のオフィス機能にデータセンターの高い防災機能を融合させた格調高い免震オフィスビルです。
当日内見希望もよろこんで!
- ご希望の募集区画が無い場合、募集が掛かった際にすぐにご紹介いたします。
- ちなみに、ネット非掲載なだけで、隠し床として存在する場合もございます。
- 現在の区画を分割するなどして、造れる可能性もございます。
- 勿論、類似物件のご紹介もご希望頂ければ喜んでさせて頂きます。
京阪神御堂筋ビル物件情報
- 住所
- 大阪市中央区道修町3-6-1
- 最寄駅
-
大阪メトロ御堂筋線 淀屋橋駅徒歩3分
大阪メトロ御堂筋線 本町駅徒歩8分
大阪メトロ四つ橋線 肥後橋駅徒歩9分
大阪メトロ堺筋線 北浜駅徒歩9分 - 竣工
- 2007年2月
- 耐震
- 新耐震基準
- 階数
- 地上14階 地下1階
- 用途
- 事務所
- 構造
- S造
- エレベーター
- 6 基
- 空調
- 個別空調
- OAフロア
- OAフロア
- 基準階天井高
- 2800mm
- 光ファイバー
- 有り
- トイレ
- 男女別・室外
- 機械警備
- 有り
- 駐車場
- 有り
大理石で構成された、シンプルで 格調高いエントランスロビー
御堂筋と心斎橋筋をつなぐ東西 3 5m余のエントランスロビーは、明るい色調の大理石で構成された高さ4.2mの大ホールです。シンプルで格調高い空間と素材の持つ温かな質感が、訪れる方々を和ませてくれます。
地下1階には28台の平面駐車場を確保
地下1階には入出庫時のわずらわしさがない自走式平面駐車場を28台分ご用意。大型車もハイルーフ車も駐車可。総駐車台数52台。地下1階のエントランスも充実。オフィスまで雨に濡れずに直行できます。
利便性とフレキシビリティが高く、快適な空調システムを持つ執務空間
■無柱空間のオフィスは効率的なレイアウトが出来るため、賃料・共益費・電気代等の合理化が図れます
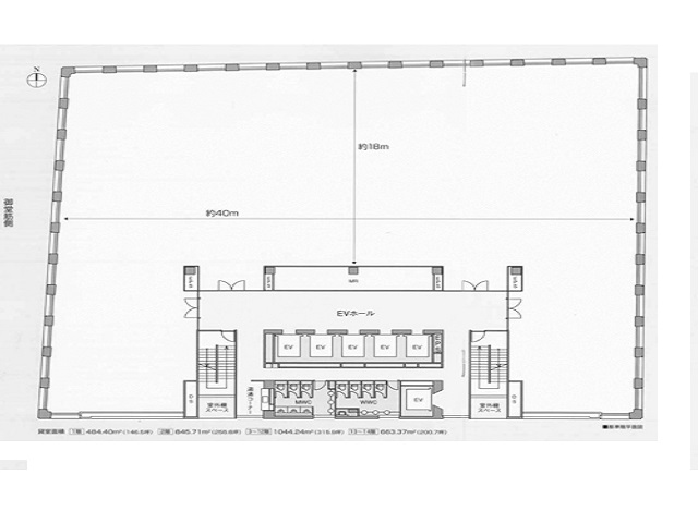
1フロア 315坪、天井高 2.8m、OAフロア(H=100mm)、平均照度 800ルクス以上
■電気容量 60VA/m2(120VA/m2集中設置可能)
■オフィス電源のプレワイヤリング(先行配線)を採用
■ 重要電源のバックアップ機能標準装備(非常用発電機+UPS)
■マルチキャリア対応の大容量情報通信設備
■将来の設備増設に対応可能なPS・EPS・室外機スペース確保
■重たい設備もおまかせの余裕をもった床荷重対応:床荷重500kg/㎡(重荷重ゾーン800kg/㎡)
■温湿度に配慮したきめ細やかな空調ゾーニング対応:約20坪毎に温度調整が可能
■24時間365日自由に空調利用が可能:室内のタッチパネルで簡単操作
■年間を通じて冷暖房設定が自由自在
■時間外空調コストの低減を図る高効率な熱源方式
オフィスライフに潤いをもたらす共有エリア
■ゆったり広々のエレベーターホール
■自然光を採り入れた明るいトイレ・湯沸コーナー・階段室
■清潔感あふれる最新のトイレ
・ウォシュレット
・自動洗浄システム
・女性用トイレに小物収納BOX
■地下1階に非喫煙・喫煙別のリフレッシュコーナー
大地震にも安心な本格的な免震構造
建物全体を免震装置で支えることで地震による影響を最小限に抑える中間層免震システムを採用。
在館者の安全はもちろん、OA機器やオフィス家具の被害も防止。(非免震と比べ、揺れの加速度を1/5程度に低減)
安全性と機能性を両立したセキュリティーシステム
各テナント出入口には非接触型ICカードによるセキュリティーシステムを採用。
24時間365日のオフィス使用が可能。 厳重なビル監視システムにより緊急時も迅速に対応。
省エネにも役立つ最終退室時の照明・空調切忘れ防止機能。 各種生体認証システムも導入可能。
データセンタービルと同等の信頼性を誇る電気設備
■信頼性の高い電源供給システムを採用
・異なる変電所から電力を引き込む2回線受電方式を採用
・地域停電リスクを低減
・受変電設備および重要幹線の2重化
・定期点検時も無停電で電源を供給
■重要電源は非常用発電機+UPSにより完全無停電化
・万一の商用電力全停電時に備え非常用発電機(容量1,250kVA)を実装。
・長時間にわたりオフィス内の重要機器へ安定電力を供給。
・UPS(無停電電源装置)を標準装備(容量200kVA)
瞬時停電も許されないサーバーやネットワーク機器への電源供給を確保
省エネに配慮した自動調光システム
窓からの自然光をセンサーが感知し、照明器具の出力を自動的に調節。
明るくてグレア(まぶしさ)の少ない目に優しい照明器具を採用。
室内平均800ルクス以上を確保。
断熱性能が高く、省エネに有効な複層Low-Eガラス
■オフィス内の床から天井までの開放的な窓にはLow-Eガラスを採用
断熱性に優れ快適な室内温度を保ち、冷暖房コストを低減
■優れた遮音性能により、静かな執務環境を実現
■サッシュの上部には給排気対応のスリットを設置
法令に適合した喫煙コーナーの室内設置が可能
過去募集していた区画
- 4階 104.37坪
- 5階 104.37坪
- 5階 315.88坪
- 6階 161.04坪
- 6階 154.84坪
- 6階 161.04坪
- 7階 315.88坪
- 8階 161.04坪
- 8階 154.84坪
- 9階 154.84坪
- 10階 315.88坪
- 11階 315.88坪
- 12階 315.88坪
- 13階 96.3坪



















