ご興味のある区画を検討中リストに加え、まとめてお問合せ頂けます。
| 検討中リスト | 階 | 面積 | 賃料+共益費 坪単価 |
敷金・保証金 | 入居日 | 検討中リスト | 空室確認日 |
|---|---|---|---|---|---|---|---|
|
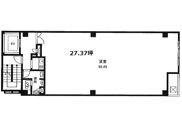
3階
301 |
27.37坪
90.49m²
|
160,000円
5,846円/坪
|
100,000円
|
即日 | 2025/11/28 |
当日内見希望もよろこんで!
※管理会社様等、物件側の事情でご希望に沿えない場合もございます。
- ご希望の募集区画が無い場合、募集が掛かった際にすぐにご紹介いたします。
- ちなみに、ネット非掲載なだけで、隠し床として存在する場合もございます。
- 現在の区画を分割するなどして、造れる可能性もございます。
- 勿論、類似物件のご紹介もご希望頂ければ喜んでさせて頂きます。
当サイトはご入居希望者様向けのサイトです。ご入居に関するお問合せ以外はお答えいたしかねます
日宝内平野町ビル物件情報
- 住所
- 大阪市中央区内平野町1-5-5
- 最寄駅
- 京阪本線 天満橋駅徒歩5分
- 竣工
- 1990年7月
- 耐震
- 新耐震基準
- 階数
- 地上8階 地上1階
- 用途
- 事務所
- 構造
- S造
- エレベーター
- 1 基
- 空調
- 個別空調
- OAフロア
- その他
- 基準階天井高
- 光ファイバー
- 有り
- トイレ
- 男女別・室外
- 機械警備
- 不明
- 駐車場
- 無し
過去募集していた区画
- 2階 27.37坪
- 4階 33.3坪
- 4階 27.37坪
- 5階 33.29坪
- 5階 27.37坪
- 7階 22.27坪













