アイカビルの賃貸オフィス・貸事務所【募集情報】
最終更新日:2026/04/01
- アイカビル
- 大阪市中央区南船場1-13-27
- 竣工/2004年3月 耐震基準/新耐震基準 基準階面積/132坪 地上8階 建て
アイカビルは、長堀橋駅から徒歩4分の賃貸オフィスビルです。2004年竣工の大型ビルで、外観も共用部も高級感と清潔感があります。専用部も柱が無く広々としており、天高も2750㎜あり開放的です。
当日内見希望もよろこんで!
※管理会社様等、物件側の事情でご希望に沿えない場合もございます。
- ご希望の募集区画が無い場合、募集が掛かった際にすぐにご紹介いたします。
- ちなみに、ネット非掲載なだけで、隠し床として存在する場合もございます。
- 現在の区画を分割するなどして、造れる可能性もございます。
- 勿論、類似物件のご紹介もご希望頂ければ喜んでさせて頂きます。
当サイトはご入居希望者様向けのサイトです。ご入居に関するお問合せ以外はお答えいたしかねます
アイカビル物件情報
- 住所
- 大阪市中央区南船場1-13-27
- 最寄駅
-
大阪メトロ堺筋線 長堀橋駅徒歩4分
大阪メトロ中央線 堺筋本町駅徒歩8分
大阪メトロ長堀鶴見緑地線 松屋町駅徒歩9分 - 竣工
- 2004年3月
- 耐震
- 新耐震基準
- 階数
- 地上8階
- 用途
- 事務所
- 構造
- S造
- エレベーター
- 2 基
- 空調
- 個別空調
- OAフロア
- OAフロア
- 基準階天井高
- 2750mm
- 光ファイバー
- 有り
- トイレ
- 男女別・室外
- 機械警備
- 有り
- 駐車場
- 有り
過去募集していた区画
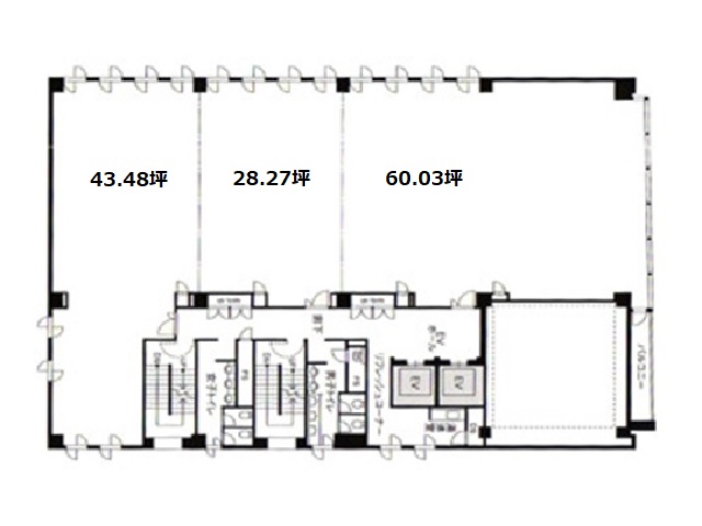
- 4階 57.47坪
- 6階 60.03坪
- 6階 60.03坪
- 6階 28.27坪
- 6階 43坪
- 6階 131.78坪
- 7階 88.3坪
- 7階 43.48坪
- 8階 28.27坪











