砂糖会館ビルの賃貸オフィス・貸事務所【募集情報】
最終更新日:2026/03/16
- 砂糖会館ビル
- 大阪市中央区南船場2-10-12
- 竣工/1990年5月 耐震基準/新耐震基準
長堀橋駅より徒歩約3分のオフィスビルです。
心斎橋からも徒歩6分程度でアクセスを重視される企業様にオススメです。
心斎橋からも徒歩6分程度でアクセスを重視される企業様にオススメです。
ご興味のある区画を検討中リストに加え、まとめてお問合せ頂けます。
| 検討中リスト | 階 | 面積 | 賃料+共益費 坪単価 |
敷金・保証金 | 入居日 | 検討中リスト | 空室確認日 |
|---|---|---|---|---|---|---|---|
|
1階
|
15.78坪
52.17m²
|
相談
|
10ヶ月
|
相談 | 2026/03/16 | ||
|
6階
|
29.66坪
98.06m²
|
相談
|
10ヶ月
|
2026/03/16 |
当日内見希望もよろこんで!
※管理会社様等、物件側の事情でご希望に沿えない場合もございます。
- ご希望の募集区画が無い場合、募集が掛かった際にすぐにご紹介いたします。
- ちなみに、ネット非掲載なだけで、隠し床として存在する場合もございます。
- 現在の区画を分割するなどして、造れる可能性もございます。
- 勿論、類似物件のご紹介もご希望頂ければ喜んでさせて頂きます。
当サイトはご入居希望者様向けのサイトです。ご入居に関するお問合せ以外はお答えいたしかねます
砂糖会館ビル物件情報
- 住所
- 大阪市中央区南船場2-10-12
- 最寄駅
-
大阪メトロ堺筋線 長堀橋駅徒歩4分
大阪メトロ御堂筋線 心斎橋駅徒歩8分
大阪メトロ中央線 堺筋本町駅徒歩11分 - 竣工
- 1990年5月
- 耐震
- 新耐震基準
- 階数
- 地上7階
- 用途
- 事務所 / 店舗
- 構造
- S造
- エレベーター
- 1 基
- 空調
- 個別空調
- OAフロア
- その他
- 基準階天井高
- 2500mm
- 光ファイバー
- 無し
- トイレ
- 男女別・室外
- 機械警備
- 無し
- 駐車場
- 無し
過去募集していた区画
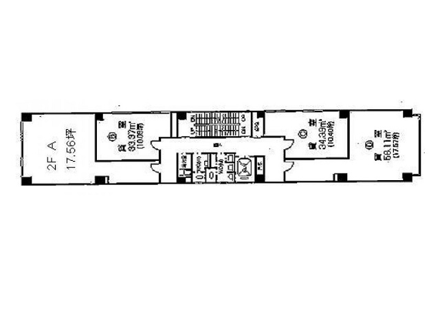
- 2階 17.57坪
- 4階 29.66坪
- 6階 25.24坪
- 6階 29.97坪
- 7階 20.51坪
















