心斎橋イーストスクエアビルの賃貸オフィス・貸事務所【募集情報】
最終更新日:2026/02/18
- 心斎橋イーストスクエアビル
- 大阪市中央区南船場2-12-5
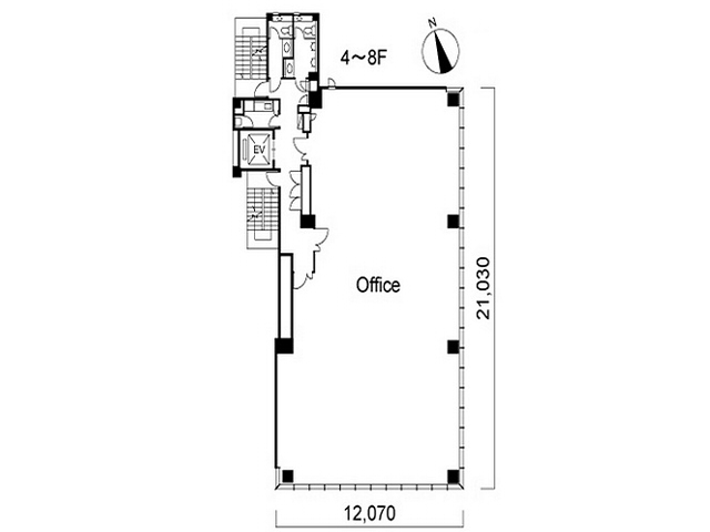
- 竣工/2007年4月 耐震基準/新耐震基準 基準階面積/69坪 地上10階 建て
心斎橋イーストスクエアビルは、長堀通りに面したガラス張りの外観が特長の角ビルです。土日祝日エントランスオープンで、事務所以外も業種によってはご相談可能です。
ご興味のある区画を検討中リストに加え、まとめてお問合せ頂けます。
| 検討中リスト | 階 | 面積 | 賃料+共益費 坪単価 |
敷金・保証金 | 入居日 | 検討中リスト | 空室確認日 |
|---|---|---|---|---|---|---|---|
|
6階
B |
21.72坪
71.81m²
|
347,520円
16,000円/坪
|
12ヶ月
|
即日 | 2026/02/02 |
当日内見希望もよろこんで!
※管理会社様等、物件側の事情でご希望に沿えない場合もございます。
- ご希望の募集区画が無い場合、募集が掛かった際にすぐにご紹介いたします。
- ちなみに、ネット非掲載なだけで、隠し床として存在する場合もございます。
- 現在の区画を分割するなどして、造れる可能性もございます。
- 勿論、類似物件のご紹介もご希望頂ければ喜んでさせて頂きます。
当サイトはご入居希望者様向けのサイトです。ご入居に関するお問合せ以外はお答えいたしかねます
心斎橋イーストスクエアビル物件情報
- 住所
- 大阪市中央区南船場2-12-5
- 最寄駅
-
大阪メトロ堺筋線 長堀橋駅徒歩2分
大阪メトロ御堂筋線 心斎橋駅徒歩3分
大阪メトロ四つ橋線 四ツ橋駅徒歩11分 - 竣工
- 2007年4月
- 耐震
- 新耐震基準
- 階数
- 地上10階
- 用途
- 事務所 / 店舗
- 構造
- S造
- エレベーター
- 1 基
- 空調
- 個別空調
- OAフロア
- OAフロア
- 基準階天井高
- 光ファイバー
- 有り
- トイレ
- 男女別・室外
- 機械警備
- 有り
- 駐車場
- 無し
過去募集していた区画
- 4階 69.11坪
- 4階 69.11坪
- 5階 69.11坪
- 6階 29.87坪
- 6階 20.93坪
- 7階 39.22坪
- 7階 29.87坪
- 7階 69.11坪
- 8階 29.87坪
- 8階 39.22坪
- 8階 20.93坪
- 9階 21.16坪
- 10階 61.65坪







