御堂筋武田ビルの賃貸オフィス・貸事務所【募集情報】
最終更新日:2026/02/18
- 御堂筋武田ビル
- 大阪市中央区南船場3-9-15
- 竣工/2002年10月 耐震基準/新耐震基準 基準階面積/101坪 地上9階 地下1階建て
御堂筋武田ビルは、心斎橋駅から徒歩3分、御堂筋沿いの大型オフィスビルです。高級感あるエントランス周りが立地のブランド力をさらに引き立てます。貸室も使い勝手の良い形状に加え、高い天井が魅力です。
「御堂筋武田ビル」には現在公開できる募集区画がございません。最新の募集状況のご確認、もしくは類似物件のご提案は、こちらよりお問い合わせ下さい。
当日内見希望もよろこんで!
※管理会社様等、物件側の事情でご希望に沿えない場合もございます。
- ご希望の募集区画が無い場合、募集が掛かった際にすぐにご紹介いたします。
- ちなみに、ネット非掲載なだけで、隠し床として存在する場合もございます。
- 現在の区画を分割するなどして、造れる可能性もございます。
- 勿論、類似物件のご紹介もご希望頂ければ喜んでさせて頂きます。
当サイトはご入居希望者様向けのサイトです。ご入居に関するお問合せ以外はお答えいたしかねます
御堂筋武田ビル物件情報
- 住所
- 大阪市中央区南船場3-9-15
- 最寄駅
-
大阪メトロ御堂筋線 心斎橋駅徒歩3分
大阪メトロ御堂筋線 本町駅徒歩8分
大阪メトロ四つ橋線 四ツ橋駅徒歩10分 - 竣工
- 2002年10月
- 耐震
- 新耐震基準
- 階数
- 地上9階 地下1階
- 用途
- 事務所
- 構造
- RC造
- エレベーター
- 2 基
- 空調
- 個別空調
- OAフロア
- OAフロア
- 基準階天井高
- 2800mm
- 光ファイバー
- 有り
- トイレ
- 男女別・室外
- 機械警備
- 有り
- 駐車場
- 有り
過去募集していた区画
- 4階 47.89坪
- 4階 47.89坪
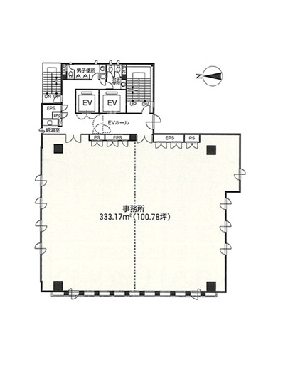
- 7階 100.78坪
- 9階 65.98坪







