ACN心斎橋ビルの賃貸オフィス・貸事務所【募集情報】
最終更新日:2026/05/15
- ACN心斎橋ビル
- 大阪市中央区南船場4-12-10
- 竣工/2014年8月 耐震基準/新耐震基準
ACN心斎橋ビルは、心斎橋駅から徒歩1分の駅近テナントビルです。ガラス張りの綺麗な外観が特徴的で、長堀通りに面した良く目立つ物件です。事務所のみならず、サービス店舗等もご相談可能です。
当日内見希望もよろこんで!
※管理会社様等、物件側の事情でご希望に沿えない場合もございます。
- ご希望の募集区画が無い場合、募集が掛かった際にすぐにご紹介いたします。
- ちなみに、ネット非掲載なだけで、隠し床として存在する場合もございます。
- 現在の区画を分割するなどして、造れる可能性もございます。
- 勿論、類似物件のご紹介もご希望頂ければ喜んでさせて頂きます。
当サイトはご入居希望者様向けのサイトです。ご入居に関するお問合せ以外はお答えいたしかねます
ACN心斎橋ビル物件情報
- 住所
- 大阪市中央区南船場4-12-10
- 最寄駅
-
大阪メトロ四つ橋線 四ツ橋駅徒歩1分
大阪メトロ御堂筋線 心斎橋駅徒歩1分
大阪メトロ長堀鶴見緑地線 西大橋駅徒歩-1分
大阪メトロ中央線 本町駅徒歩-1分 - 竣工
- 2014年8月
- 耐震
- 新耐震基準
- 階数
- 地上10階
- 用途
- 事務所 / 店舗
- 構造
- S造
- エレベーター
- 2 基
- 空調
- 個別空調
- OAフロア
- OAフロア
- 基準階天井高
- 2800mm
- 光ファイバー
- 有り
- トイレ
- 男女別・室外
- 機械警備
- 有り
- 駐車場
- 無し
過去募集していた区画
- 2階 56.66坪
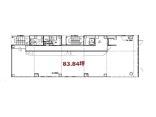
- 3階 83.84坪
- 3階 68.12坪
- 5階 68.1坪
- 5階 19.98坪
- 5階 23.87坪
- 5階 24.3坪
- 5階 19.93坪
- 6階 46.1坪
- 6階 43.7坪
- 6階 24.3坪
- 6階 45坪
- 7階 83.84坪
- 8階 83.84坪
- 9階 83.84坪
- 10階 68.1坪




















