カネセ中央ビルの賃貸オフィス・貸事務所【募集情報】
最終更新日:2026/04/01
- カネセ中央ビル
- 大阪市中央区南本町3-1-12
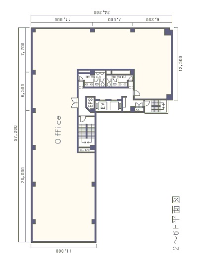
- 竣工/1992年10月 耐震基準/新耐震基準 基準階面積/111坪 地上9階 地下1階建て
大阪市のビジネス街本町駅の中心地に立地。
大阪メトロ御堂筋線、中央線「本町」駅徒歩2分 四ツ橋線「本町」駅徒歩5分
3路線利用可能な本町駅の中心に立地するオフィスビルです。
周辺には心斎橋筋商店街がありお食事には便利なエリアです。
新耐震基準、男女別トイレ、機械警備など設備も充実しております。
大阪メトロ御堂筋線、中央線「本町」駅徒歩2分 四ツ橋線「本町」駅徒歩5分
3路線利用可能な本町駅の中心に立地するオフィスビルです。
周辺には心斎橋筋商店街がありお食事には便利なエリアです。
新耐震基準、男女別トイレ、機械警備など設備も充実しております。
ご興味のある区画を検討中リストに加え、まとめてお問合せ頂けます。
| 検討中リスト | 階 | 面積 | 賃料+共益費 坪単価 |
敷金・保証金 | 入居日 | 検討中リスト | 空室確認日 |
|---|---|---|---|---|---|---|---|
|
2階
|
111.09坪
367.26m²
|
1,666,350円
15,000円/坪
|
2026年5月 | 2026/04/01 | |||
|
2階
|
39.79坪
131.55m²
|
596,850円
15,000円/坪
|
10ヶ月
|
2026年5月 | 2026/04/01 | ||
|
9階
|
89.12坪
294.63m²
|
1,336,800円
15,000円/坪
|
10ヶ月
|
即日 | 2026/04/01 |
当日内見希望もよろこんで!
※管理会社様等、物件側の事情でご希望に沿えない場合もございます。
- ご希望の募集区画が無い場合、募集が掛かった際にすぐにご紹介いたします。
- ちなみに、ネット非掲載なだけで、隠し床として存在する場合もございます。
- 現在の区画を分割するなどして、造れる可能性もございます。
- 勿論、類似物件のご紹介もご希望頂ければ喜んでさせて頂きます。
当サイトはご入居希望者様向けのサイトです。ご入居に関するお問合せ以外はお答えいたしかねます
カネセ中央ビル物件情報
- 住所
- 大阪市中央区南本町3-1-12
- 最寄駅
-
大阪メトロ御堂筋線 本町駅徒歩2分
大阪メトロ堺筋線 堺筋本町駅徒歩6分 - 竣工
- 1992年10月
- 耐震
- 新耐震基準
- 階数
- 地上9階 地下1階
- 用途
- 事務所
- 構造
- S造
- エレベーター
- 2 基
- 空調
- 個別空調
- OAフロア
- OAフロア
- 基準階天井高
- 光ファイバー
- 有り
- トイレ
- 男女別・室外
- 機械警備
- 有り
- 駐車場
- 有り
過去募集していた区画
- 5階 150.88坪
- 6階 111.09坪
- 7階 103.8坪







