WEAVE HONMACHI(ウィーブホンマチ)の賃貸オフィス・貸事務所【募集情報】
最終更新日:2026/02/18
- WEAVE HONMACHI(ウィーブホンマチ)
- 大阪市中央区南本町3-3-9
- 竣工/1995年4月 耐震基準/新耐震基準 基準階面積/78坪 地上10階 地下1階建て
交通重視の企業様に最適。
地下鉄御堂筋線、地下鉄四つ橋線、地下鉄中央線・本町駅より徒歩2分の貸事務所。
本町駅が最寄りのオフィスビルです。3路線使用可能のため、交通の便が良いです。またどの方面にも行きやすい立地なので営業所を設立、移転を検討の企業様にお勧めです。
地下鉄御堂筋線、地下鉄四つ橋線、地下鉄中央線・本町駅より徒歩2分の貸事務所。
本町駅が最寄りのオフィスビルです。3路線使用可能のため、交通の便が良いです。またどの方面にも行きやすい立地なので営業所を設立、移転を検討の企業様にお勧めです。
ご興味のある区画を検討中リストに加え、まとめてお問合せ頂けます。
| 検討中リスト | 階 | 面積 | 賃料+共益費 坪単価 |
敷金・保証金 | 入居日 | 検討中リスト | 空室確認日 |
|---|---|---|---|---|---|---|---|
|
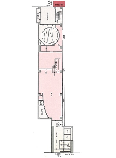
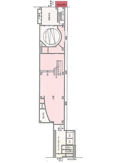
1階
1-2F |
142.78坪
472.03m²
|
相談
|
12ヶ月
|
即日 | 2026/02/17 | ||
|
10階
申込 |
7.74坪
25.59m²
|
相談
|
相談
|
即日 | 2026/02/17 | ||
|
10階
申込 |
21.84坪
72.2m²
|
相談
|
相談
|
即日 | 2026/02/17 |
当日内見希望もよろこんで!
※管理会社様等、物件側の事情でご希望に沿えない場合もございます。
- ご希望の募集区画が無い場合、募集が掛かった際にすぐにご紹介いたします。
- ちなみに、ネット非掲載なだけで、隠し床として存在する場合もございます。
- 現在の区画を分割するなどして、造れる可能性もございます。
- 勿論、類似物件のご紹介もご希望頂ければ喜んでさせて頂きます。
当サイトはご入居希望者様向けのサイトです。ご入居に関するお問合せ以外はお答えいたしかねます
WEAVE HONMACHI(ウィーブホンマチ)物件情報
- 住所
- 大阪市中央区南本町3-3-9
- 最寄駅
- 大阪メトロ御堂筋線 本町駅徒歩2分
- 竣工
- 1995年4月
- 耐震
- 新耐震基準
- 階数
- 地上10階 地下1階
- 用途
- 事務所 / 店舗
- 構造
- SRC造、一部RC造
- エレベーター
- 2 基
- 空調
- 個別空調
- OAフロア
- OAフロア
- 基準階天井高
- 2600mm
- 光ファイバー
- 有り
- トイレ
- 男女別・室外
- 機械警備
- 有り
- 駐車場
- 有り
過去募集していた区画
- 1階 35.91坪
- 3階 9.13坪
- 3階 9.13坪
- 3階 8.8坪
- 3階 9.83坪
- 3階 9.46坪
- 3階 90.16坪
- 3階 9.83坪
- 3階 33坪
- 3階 9.13坪
- 4階 90.16坪
- 4階 33坪
- 6階 93.18坪
- 7階 86.25坪
- 8階 85.36坪
- 9階 77.69坪














