南海難波御堂筋ウエストの賃貸オフィス・貸事務所【募集情報】
最終更新日:2026/04/03
- 南海難波御堂筋ウエスト
- 大阪市中央区難波2-3-7
- 竣工/1985年8月 耐震基準/新耐震基準 基準階面積/131坪 地上11階 地下2階建て
南海難波御堂筋ウエストは、なんば駅から徒歩2分の賃貸オフィスビルです。千日前通に面したガラス張りの目立つ外観が特長です。立地の利便性に加え、中央区難波の住所も魅力的です。
当日内見希望もよろこんで!
※管理会社様等、物件側の事情でご希望に沿えない場合もございます。
- ご希望の募集区画が無い場合、募集が掛かった際にすぐにご紹介いたします。
- ちなみに、ネット非掲載なだけで、隠し床として存在する場合もございます。
- 現在の区画を分割するなどして、造れる可能性もございます。
- 勿論、類似物件のご紹介もご希望頂ければ喜んでさせて頂きます。
当サイトはご入居希望者様向けのサイトです。ご入居に関するお問合せ以外はお答えいたしかねます
南海難波御堂筋ウエスト物件情報
- 住所
- 大阪市中央区難波2-3-7
- 最寄駅
-
大阪メトロ御堂筋線 なんば駅徒歩2分
阪神なんば線 大阪難波駅徒歩2分 - 竣工
- 1985年8月
- 耐震
- 新耐震基準
- 階数
- 地上11階 地下2階
- 用途
- 事務所
- 構造
- S造
- エレベーター
- 2 基
- 空調
- 個別空調 / セントラル空調
- OAフロア
- OAフロア
- 基準階天井高
- 2500mm
- 光ファイバー
- 有り
- トイレ
- 男女別・室外
- 機械警備
- 有り
- 駐車場
- 有り
過去募集していた区画
- B1階 107坪
- 2階 50.1坪
- 2階 48.43坪
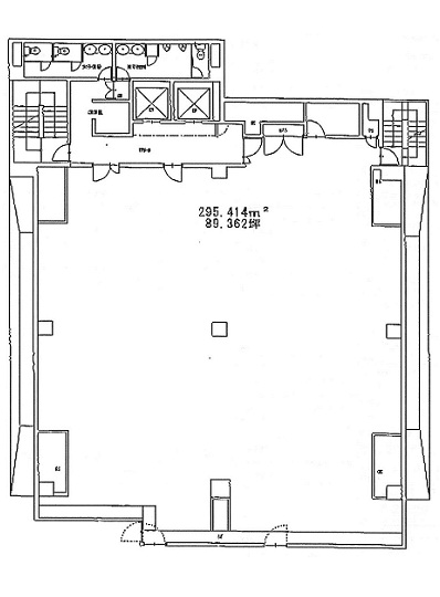
- 3階 131.68坪
- 6階 54.87坪
- 8階 131.68坪
- 9階 35.8坪
- 9階 53.75坪
- 9階 17.82坪
- 9階 52.98坪
- 10階 107.88坪























