ご興味のある区画を検討中リストに加え、まとめてお問合せ頂けます。
| 検討中リスト | 階 | 面積 | 賃料+共益費 坪単価 |
敷金・保証金 | 入居日 | 検討中リスト | 空室確認日 |
|---|---|---|---|---|---|---|---|
|
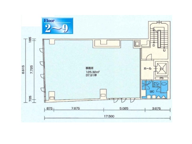
2階
ワンフロア |
37.91坪
125.33m²
|
1,061,480円
28,000円/坪
|
相談
|
即日 | 2026/02/03 | ||
|
6階
ワンフロア |
37.91坪
125.33m²
|
758,200円
20,000円/坪
|
3,866,820円
|
即日 | 2026/02/03 | ||
|
8階
ワンフロア 先行有 |
39.4坪
130.26m²
|
788,000円
20,000円/坪
|
4,018,800円
|
2026年5月 | 2026/02/03 |
当日内見希望もよろこんで!
※管理会社様等、物件側の事情でご希望に沿えない場合もございます。
- ご希望の募集区画が無い場合、募集が掛かった際にすぐにご紹介いたします。
- ちなみに、ネット非掲載なだけで、隠し床として存在する場合もございます。
- 現在の区画を分割するなどして、造れる可能性もございます。
- 勿論、類似物件のご紹介もご希望頂ければ喜んでさせて頂きます。
当サイトはご入居希望者様向けのサイトです。ご入居に関するお問合せ以外はお答えいたしかねます
三栄御堂筋ビル物件情報
- 住所
- 大阪市中央区難波3-5-8
- 最寄駅
- 大阪メトロ御堂筋線 なんば駅徒歩3分
- 竣工
- 1968年1月
- 耐震
- 旧耐震基準
- 階数
- 地上10階 地下2階
- 用途
- 事務所 / 店舗
- 構造
- S造
- エレベーター
- 1 基
- 空調
- 個別空調
- OAフロア
- その他
- 基準階天井高
- 光ファイバー
- 有り
- トイレ
- 男女別・室外
- 機械警備
- 有り
- 駐車場
- 無し
過去募集していた区画
- 3階 37.91坪
- 4階 37.91坪
- 5階 37.91坪
- 7階 39.4坪
- 10階 25.93坪







