明治安田生命備後町ビルの賃貸オフィス・貸事務所【募集情報】
最終更新日:2026/04/01
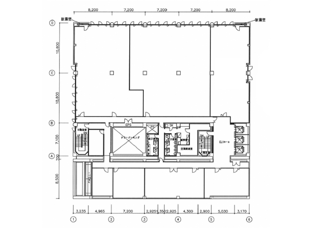
- 明治安田生命備後町ビル
- 大阪市中央区備後町1-6-15
- 竣工/1982年5月 耐震基準/耐震補強済 基準階面積/339坪 地上9階 地上1階建て
明治安田生命備後町ビルは、堺筋本町駅から徒歩4分の賃貸オフィスビルです。堺筋に面した大規模ビルで、1階にドトールコーヒーが入っています。耐震補強済みで新耐震基準を満たします。
ご興味のある区画を検討中リストに加え、まとめてお問合せ頂けます。
| 検討中リスト | 階 | 面積 | 賃料+共益費 坪単価 |
敷金・保証金 | 入居日 | 検討中リスト | 空室確認日 |
|---|---|---|---|---|---|---|---|
|
6階
|
39.6坪
130.92m²
|
相談
|
相談
|
相談 | 2026/04/01 | ||
|
7階
|
8.86坪
29.29m²
|
相談
|
相談
|
相談 | 2026/04/01 |
当日内見希望もよろこんで!
※管理会社様等、物件側の事情でご希望に沿えない場合もございます。
- ご希望の募集区画が無い場合、募集が掛かった際にすぐにご紹介いたします。
- ちなみに、ネット非掲載なだけで、隠し床として存在する場合もございます。
- 現在の区画を分割するなどして、造れる可能性もございます。
- 勿論、類似物件のご紹介もご希望頂ければ喜んでさせて頂きます。
当サイトはご入居希望者様向けのサイトです。ご入居に関するお問合せ以外はお答えいたしかねます
明治安田生命備後町ビル物件情報
- 住所
- 大阪市中央区備後町1-6-15
- 最寄駅
-
大阪メトロ中央線 堺筋本町駅徒歩4分
大阪メトロ堺筋線 北浜駅徒歩7分
大阪メトロ御堂筋線 本町駅徒歩10分 - 竣工
- 1982年5月
- 耐震
- 耐震補強済
- 階数
- 地上9階 地上1階
- 用途
- 事務所 / 店舗
- 構造
- S造
- エレベーター
- 4 基
- 空調
- 個別空調
- OAフロア
- その他
- 基準階天井高
- 2450mm
- 光ファイバー
- 有り
- トイレ
- 男女別・室外
- 機械警備
- 無し
- 駐車場
- 有り
過去募集していた区画
- 1階 96.79坪
- 2階 93.73坪
- 2階 86.2坪
- 2階 43.1坪
- 2階 50.63坪
- 2階 43.1坪
- 2階 43.1坪
- 2階 44.43坪
- 2階 179.93坪
- 2階 136.83坪
- 2階 224.36坪
- 4階 50.62坪
- 6階 138.78坪
- 6階 89.11坪
- 7階 52.58坪
- 8階 29.36坪
- 8階 5.72坪
- 8階 29.36坪
- 9階 8.87坪



















