大雅ビルの賃貸オフィス・貸事務所【募集情報】
最終更新日:2026/02/18
- 大雅ビル
- 大阪市中央区備後町3-6-2
- 竣工/1963年10月 耐震基準/旧耐震基準 基準階面積/63坪 地上9階 地下2階建て
大雅ビルは、大阪市中央区備後町に位置し、御堂筋沿いに建つオフィスビルです。御堂筋線本町駅から徒歩1分という優れたアクセスが特徴で、ビジネス街の中心地に立地しています。周辺には銀行や郵便局、飲食店が豊富に揃い、隣にはコンビニや地下鉄の出入口もあり、日常の利便性に優れています。2015年にリニューアルが施され、快適なオフィス環境が整備されています。
このビルは、御堂筋沿いの賃貸オフィスの中で唯一、100坪未満の中型オフィスビルであり、適度な広さのオフィスをお探しの企業にとって貴重な選択肢となります。フロアスペックはOAフロア仕様で、柔軟なレイアウトが可能です。設備としてはエレベーターが2基設置されており、少人数のオフィス利用に適しています。セキュリティ面では機械警備を導入しており、入居者の安全を確保しています。
旧耐震基準のため最新基準には及びませんが、大通り沿いで視認性の高い立地と利便性の高い周辺環境による、人気の物件です。
このビルは、御堂筋沿いの賃貸オフィスの中で唯一、100坪未満の中型オフィスビルであり、適度な広さのオフィスをお探しの企業にとって貴重な選択肢となります。フロアスペックはOAフロア仕様で、柔軟なレイアウトが可能です。設備としてはエレベーターが2基設置されており、少人数のオフィス利用に適しています。セキュリティ面では機械警備を導入しており、入居者の安全を確保しています。
旧耐震基準のため最新基準には及びませんが、大通り沿いで視認性の高い立地と利便性の高い周辺環境による、人気の物件です。
「大雅ビル」には現在公開できる募集区画がございません。最新の募集状況のご確認、もしくは類似物件のご提案は、こちらよりお問い合わせ下さい。
当日内見希望もよろこんで!
※管理会社様等、物件側の事情でご希望に沿えない場合もございます。
- ご希望の募集区画が無い場合、募集が掛かった際にすぐにご紹介いたします。
- ちなみに、ネット非掲載なだけで、隠し床として存在する場合もございます。
- 現在の区画を分割するなどして、造れる可能性もございます。
- 勿論、類似物件のご紹介もご希望頂ければ喜んでさせて頂きます。
当サイトはご入居希望者様向けのサイトです。ご入居に関するお問合せ以外はお答えいたしかねます
大雅ビル物件情報
- 住所
- 大阪市中央区備後町3-6-2
- 最寄駅
- 大阪メトロ御堂筋線 本町駅徒歩1分
- 竣工
- 1963年10月
- 耐震
- 旧耐震基準
- 階数
- 地上9階 地下2階
- 用途
- 事務所 / 店舗
- 構造
- SRC造
- エレベーター
- 2 基
- 空調
- 個別空調
- OAフロア
- OAフロア / タイルカーペット
- 基準階天井高
- 2600mm
- 光ファイバー
- 有り
- トイレ
- 男女別・室外
- 機械警備
- 有り
- 駐車場
- 無し
過去募集していた区画
- 1階 42坪
- 2階 58.03坪
- 5階 63坪
- 7階 31.38坪
- 7階 31.38坪
- 7階 29.12坪
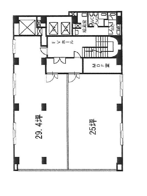
- 8階 29.4坪
- 8階 25坪


















