堺筋ウエストプレイスの賃貸オフィス・貸事務所【募集情報】
最終更新日:2026/03/24
- 堺筋ウエストプレイス
- 大阪市中央区平野町2-2-13
- 竣工/2007年10月 耐震基準/新耐震基準 基準階面積/24坪 地上11階 建て
堺筋ウエストプレイスは、北浜駅から徒歩3分の賃貸オフィスビルです。
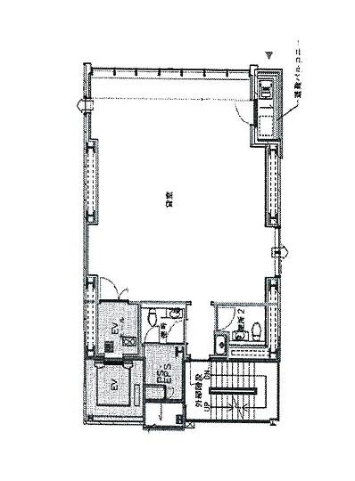
堺筋に面したガラス張りの綺麗な外観が魅力的です。貸室は無柱の綺麗な四角形で、使い勝手が良いでしょう。1フロア1テナントで、他の企業様に気兼ねなくご利用いただけます。
堺筋に面したガラス張りの綺麗な外観が魅力的です。貸室は無柱の綺麗な四角形で、使い勝手が良いでしょう。1フロア1テナントで、他の企業様に気兼ねなくご利用いただけます。
ご興味のある区画を検討中リストに加え、まとめてお問合せ頂けます。
| 検討中リスト | 階 | 面積 | 賃料+共益費 坪単価 |
敷金・保証金 | 入居日 | 検討中リスト | 空室確認日 |
|---|---|---|---|---|---|---|---|
|
2階
|
22.87坪
75.61m²
|
相談
|
10ヶ月
|
2026年6月 | 2026/03/23 | ||
|
10階
|
23.95坪
79.18m²
|
相談
|
10ヶ月
|
2026年9月 | 2026/03/23 | ||
|
11階
|
23.95坪
79.18m²
|
相談
|
10ヶ月
|
2026年9月 | 2026/03/23 |
当日内見希望もよろこんで!
※管理会社様等、物件側の事情でご希望に沿えない場合もございます。
- ご希望の募集区画が無い場合、募集が掛かった際にすぐにご紹介いたします。
- ちなみに、ネット非掲載なだけで、隠し床として存在する場合もございます。
- 現在の区画を分割するなどして、造れる可能性もございます。
- 勿論、類似物件のご紹介もご希望頂ければ喜んでさせて頂きます。
当サイトはご入居希望者様向けのサイトです。ご入居に関するお問合せ以外はお答えいたしかねます
堺筋ウエストプレイス物件情報
- 住所
- 大阪市中央区平野町2-2-13
- 最寄駅
-
大阪メトロ堺筋線 北浜駅徒歩3分
大阪メトロ堺筋線 堺筋本町駅徒歩5分
京阪中之島線 なにわ橋駅徒歩9分 - 竣工
- 2007年10月
- 耐震
- 新耐震基準
- 階数
- 地上11階
- 用途
- 事務所
- 構造
- S造、一部SRC造
- エレベーター
- 1 基
- 空調
- 個別空調
- OAフロア
- OAフロア
- 基準階天井高
- 2550mm
- 光ファイバー
- 有り
- トイレ
- 男女別・室外
- 機械警備
- 有り
- 駐車場
- 無し
過去募集していた区画
- 3階 23.95坪
- 5階 23.95坪
- 6階 23.95坪
- 7階 23.95坪
- 8階 23.95坪
- 9階 23.95坪


























