ご興味のある区画を検討中リストに加え、まとめてお問合せ頂けます。
| 検討中リスト | 階 | 面積 | 賃料+共益費 坪単価 |
敷金・保証金 | 入居日 | 検討中リスト | 空室確認日 |
|---|---|---|---|---|---|---|---|
|
3階
|
8坪
26.45m²
|
68,000円
8,500円/坪
|
204,000円
|
相談 | 2026/02/02 | ||
|
5階
501 |
12.7坪
41.99m²
|
107,950円
8,500円/坪
|
323,850円
|
2026年2月 | 2026/02/02 |
当日内見希望もよろこんで!
※管理会社様等、物件側の事情でご希望に沿えない場合もございます。
- ご希望の募集区画が無い場合、募集が掛かった際にすぐにご紹介いたします。
- ちなみに、ネット非掲載なだけで、隠し床として存在する場合もございます。
- 現在の区画を分割するなどして、造れる可能性もございます。
- 勿論、類似物件のご紹介もご希望頂ければ喜んでさせて頂きます。
当サイトはご入居希望者様向けのサイトです。ご入居に関するお問合せ以外はお答えいたしかねます
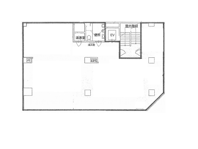
久宝ビル物件情報
- 住所
- 大阪市中央区北久宝寺町4-2-2
- 最寄駅
-
大阪メトロ御堂筋線 本町駅徒歩5分
大阪メトロ御堂筋線 心斎橋駅徒歩8分 - 竣工
- 1977年4月
- 耐震
- 旧耐震基準
- 階数
- 地上5階 地上1階
- 用途
- 事務所
- 構造
- S造
- エレベーター
- 1 基
- 空調
- 個別空調
- OAフロア
- その他
- 基準階天井高
- 2500mm
- 光ファイバー
- 有り
- トイレ
- 男女別・室外
- 機械警備
- 無し
- 駐車場
- 有り
過去募集していた区画
- 2階 14坪
- 2階 8坪
- 2階 9.5坪
- 2階 8.4坪
- 3階 5坪
- 3階 10.12坪
- 3階 12坪
- 3階 6.35坪
- 3階 7.7坪
- 4階 6坪
- 4階 16坪
- 5階 17.2坪






