リバーポイント北浜ビルの賃貸オフィス・貸事務所【募集情報】
最終更新日:2026/02/18
- リバーポイント北浜ビル
- 大阪市中央区北浜1-3-14
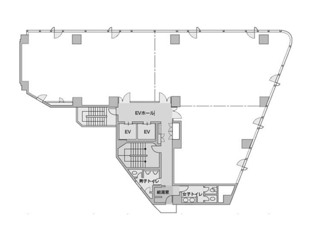
- 竣工/1990年3月 耐震基準/新耐震基準 基準階面積/83坪 地上10階 地上1階建て
リバーポイント北浜ビルは、大阪市中央区北浜に位置する賃貸オフィスビルです。北浜駅の最寄り出入口から徒歩1分、土佐堀通りに面した好立地物件です。中規模サイズのオフィスビルとしては高級感もあります。
ご興味のある区画を検討中リストに加え、まとめてお問合せ頂けます。
| 検討中リスト | 階 | 面積 | 賃料+共益費 坪単価 |
敷金・保証金 | 入居日 | 検討中リスト | 空室確認日 |
|---|---|---|---|---|---|---|---|
|
5階
503 |
20.12坪
66.52m²
|
相談
|
12ヶ月
|
2026年4月 | 2026/01/30 | ||
|
9階
902 |
31.5坪
104.14m²
|
相談
|
12ヶ月
|
2026年3月 | 2026/01/30 |
当日内見希望もよろこんで!
※管理会社様等、物件側の事情でご希望に沿えない場合もございます。
- ご希望の募集区画が無い場合、募集が掛かった際にすぐにご紹介いたします。
- ちなみに、ネット非掲載なだけで、隠し床として存在する場合もございます。
- 現在の区画を分割するなどして、造れる可能性もございます。
- 勿論、類似物件のご紹介もご希望頂ければ喜んでさせて頂きます。
当サイトはご入居希望者様向けのサイトです。ご入居に関するお問合せ以外はお答えいたしかねます
リバーポイント北浜ビル物件情報
- 住所
- 大阪市中央区北浜1-3-14
- 最寄駅
-
大阪メトロ堺筋線 北浜駅徒歩2分
大阪メトロ御堂筋線 淀屋橋駅徒歩7分
京阪中之島線 なにわ橋駅徒歩7分
京阪中之島線 天満橋駅徒歩9分 - 竣工
- 1990年3月
- 耐震
- 新耐震基準
- 階数
- 地上10階 地上1階
- 用途
- 事務所
- 構造
- SRC造
- エレベーター
- 2 基
- 空調
- 個別空調
- OAフロア
- OAフロア
- 基準階天井高
- 2500mm
- 光ファイバー
- 有り
- トイレ
- 男女別・室外
- 機械警備
- 有り
- 駐車場
- 有り
過去募集していた区画
- 1階 41.62坪
- 2階 62.92坪
- 2階 31.48坪
- 2階 31.44坪
- 2階 31.48坪
- 3階 31.48坪
- 3階 62.92坪
- 4階 20.11坪
- 6階 31.48坪
- 6階 20.12坪
- 7階 31.48坪
- 7階 62.91坪
- 7階 83.03坪
- 10階 51.92坪
- 10階 31.21坪
- 10階 83.09坪



























