ご興味のある区画を検討中リストに加え、まとめてお問合せ頂けます。
| 検討中リスト | 階 | 面積 | 賃料+共益費 坪単価 |
敷金・保証金 | 入居日 | 検討中リスト | 空室確認日 |
|---|---|---|---|---|---|---|---|
|
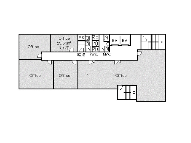
2階
|
23.42坪
77.43m²
|
281,040円
12,000円/坪
|
6ヶ月
|
即日 | 2026/03/03 | ||
|
3階
|
9.75坪
32.23m²
|
117,000円
12,000円/坪
|
6ヶ月
|
即日 | 2026/03/03 |
当日内見希望もよろこんで!
※管理会社様等、物件側の事情でご希望に沿えない場合もございます。
- ご希望の募集区画が無い場合、募集が掛かった際にすぐにご紹介いたします。
- ちなみに、ネット非掲載なだけで、隠し床として存在する場合もございます。
- 現在の区画を分割するなどして、造れる可能性もございます。
- 勿論、類似物件のご紹介もご希望頂ければ喜んでさせて頂きます。
当サイトはご入居希望者様向けのサイトです。ご入居に関するお問合せ以外はお答えいたしかねます
VIP関西センター物件情報
- 住所
- 大阪市中央区北浜2-3-10
- 最寄駅
- 京阪本線 北浜駅徒歩1分
- 竣工
- 1976年1月
- 耐震
- 旧耐震基準
- 階数
- 地上1階 地上1階
- 用途
- 事務所 / 店舗
- 構造
- S造
- エレベーター
- 2 基
- 空調
- 個別空調
- OAフロア
- OAフロア
- 基準階天井高
- 2500mm
- 光ファイバー
- 有り
- トイレ
- 男女別・室外
- 機械警備
- 無し
- 駐車場
- 無し
過去募集していた区画
- 1階 82.2坪
- 3階 7.5坪
- 4階 21.47坪
- 5階 12.5坪
- 5階 81.71坪
- 5階 30.44坪
- 5階 11.3坪
- 7階 19坪
- 8階 8坪






















