ご興味のある区画を検討中リストに加え、まとめてお問合せ頂けます。
| 検討中リスト | 階 | 面積 | 賃料+共益費 坪単価 |
敷金・保証金 | 入居日 | 検討中リスト | 空室確認日 |
|---|---|---|---|---|---|---|---|
|
5階
ワンフロア |
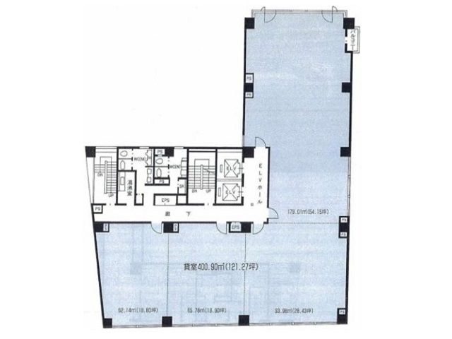
121.27坪
400.92m²
|
相談
|
12ヶ月
|
即日 | 2026/02/18 | ||
|
8階
先行有 |
54.15坪
179.02m²
|
相談
|
12ヶ月
|
即日 | 2026/02/18 |
当日内見希望もよろこんで!
※管理会社様等、物件側の事情でご希望に沿えない場合もございます。
- ご希望の募集区画が無い場合、募集が掛かった際にすぐにご紹介いたします。
- ちなみに、ネット非掲載なだけで、隠し床として存在する場合もございます。
- 現在の区画を分割するなどして、造れる可能性もございます。
- 勿論、類似物件のご紹介もご希望頂ければ喜んでさせて頂きます。
当サイトはご入居希望者様向けのサイトです。ご入居に関するお問合せ以外はお答えいたしかねます
入商八木ビル物件情報
- 住所
- 大阪市中央区北浜2-3-9
- 最寄駅
-
京阪本線 北浜駅徒歩1分
大阪メトロ御堂筋線 淀屋橋駅徒歩8分 - 竣工
- 1990年5月
- 耐震
- 新耐震基準
- 階数
- 地上10階 地下1階
- 用途
- 事務所
- 構造
- S造
- エレベーター
- 2 基
- 空調
- 個別空調
- OAフロア
- その他
- 基準階天井高
- 2500mm
- 光ファイバー
- 有り
- トイレ
- 男女別・室外
- 機械警備
- 有り
- 駐車場
- 有り
過去募集していた区画
- 1階 39.12坪
- 1階 27.68坪
- 5階 28.43坪
- 5階 19.9坪
- 6階 18.8坪
- 6階 82.58坪
- 7階 38.7坪
- 7階 18.83坪
- 7階 121.27坪
- 7階 19.9坪
- 7階 54.15坪
- 7階 54.15坪
- 7階 67.13坪
- 7階 54.15坪
- 8階 18.8坪
- 8階 82.58坪
- 8階 28坪

























