北浜 NEXU BUILDの賃貸オフィス・貸事務所【募集情報】
最終更新日:2026/03/02
- 北浜 NEXU BUILD
- 大阪市中央区北浜東4-33
- 竣工/1973年2月 耐震基準/新耐震基準 基準階面積/326坪 地上30階 地下3階建て
北浜NEXU BUILDは、歴史と風格を兼ね備えた賃貸オフィスビルです。北浜駅より徒歩5分の場所に位置し、土佐堀通りに面した漆黒のスタイリッシュな外観が特徴です。
大林組の旧:自社ビルとして知られる本ビルは、リノベーションによって現代的なオフィス空間に生まれ変わりました。高層階からは大阪の街並みや中之島を一望でき、開放感あふれるオフィスワークが可能です。
EV(常用4基+非常用兼貨物用1基)、OAフロア、有人警備、非常用自家発電機など、快適なオフィス環境をサポートする設備が充実しています。また、DBJ GreenBuilding認証を取得しており、環境にも配慮した建物です。
2024年にオープンした、お洒落なリフレッシュスペースも魅力的です。
周辺には郵便局やスーパーがあり、ビジネスに便利な環境が整っています。中之島公園も近く、ランチタイムの散策やリフレッシュにも最適です。
歴史と現代が融合した北浜NEXU BUILDを、是非ご内覧ください。
※内覧のご依頼は、お気軽に当社の問い合わせフォームからご連絡ください。
大林組の旧:自社ビルとして知られる本ビルは、リノベーションによって現代的なオフィス空間に生まれ変わりました。高層階からは大阪の街並みや中之島を一望でき、開放感あふれるオフィスワークが可能です。
EV(常用4基+非常用兼貨物用1基)、OAフロア、有人警備、非常用自家発電機など、快適なオフィス環境をサポートする設備が充実しています。また、DBJ GreenBuilding認証を取得しており、環境にも配慮した建物です。
2024年にオープンした、お洒落なリフレッシュスペースも魅力的です。
周辺には郵便局やスーパーがあり、ビジネスに便利な環境が整っています。中之島公園も近く、ランチタイムの散策やリフレッシュにも最適です。
歴史と現代が融合した北浜NEXU BUILDを、是非ご内覧ください。
※内覧のご依頼は、お気軽に当社の問い合わせフォームからご連絡ください。
ご興味のある区画を検討中リストに加え、まとめてお問合せ頂けます。
| 検討中リスト | 階 | 面積 | 賃料+共益費 坪単価 |
敷金・保証金 | 入居日 | 検討中リスト | 空室確認日 |
|---|---|---|---|---|---|---|---|
|
4階
先行有 |
325.95坪
1,077.59m²
|
相談
|
12ヶ月
|
即日 | 2026/03/02 | ||
|
10階
|
325.95坪
1,077.59m²
|
相談
|
12ヶ月
|
2026年7月 | 2026/03/02 | ||
|
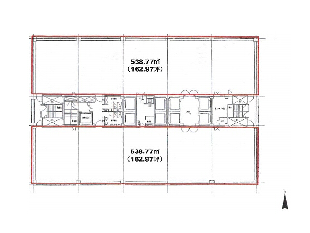
11階
先行有 |
162.98坪
538.81m²
|
相談
|
12ヶ月
|
2026年7月 | 2026/03/02 |
当日内見希望もよろこんで!
※管理会社様等、物件側の事情でご希望に沿えない場合もございます。
- ご希望の募集区画が無い場合、募集が掛かった際にすぐにご紹介いたします。
- ちなみに、ネット非掲載なだけで、隠し床として存在する場合もございます。
- 現在の区画を分割するなどして、造れる可能性もございます。
- 勿論、類似物件のご紹介もご希望頂ければ喜んでさせて頂きます。
当サイトはご入居希望者様向けのサイトです。ご入居に関するお問合せ以外はお答えいたしかねます
北浜 NEXU BUILD物件情報
- 住所
- 大阪市中央区北浜東4-33
- 最寄駅
-
京阪本線 北浜駅徒歩5分
京阪本線 天満橋駅徒歩6分 - 竣工
- 1973年2月
- 耐震
- 新耐震基準
- 階数
- 地上30階 地下3階
- 用途
- 事務所
- 構造
- S造、一部SRC造
- エレベーター
- 9 基
- 空調
- セントラル空調
- OAフロア
- OAフロア
- 基準階天井高
- 2600mm
- 光ファイバー
- 有り
- トイレ
- 男女別・室外
- 機械警備
- 無し
- 駐車場
- 有り
2024年共用部が大規模リニューアルされました
2024年に共用部が大規模リニューアルされました。トイレ水回りやEVホールは勿論ですが、目玉はやはり1階と地下1階のサンクガーデンスペースです。ちょっとした打合せやリフレッシュに最適な、お洒落で開放感のある空間に仕上がっています。
過去募集していた区画
- 2階 325.95坪
- 3階 325.95坪
- 5階 325.95坪
- 6階 325.95坪
- 7階 325.95坪
- 8階 325.95坪
- 9階 325.95坪
- 10階 325.95坪
- 11階 325.95坪
- 11階 325.95坪
- 12階 325.95坪
- 12階 325.95坪
- 13階 325.95坪
- 14階 325.95坪
- 17階 28.15坪
- 17階 53.63坪
- 17階 26.81坪
- 17階 28.15坪
- 17階 81.78坪
- 17階 58.99坪
- 17階 212.59坪
- 17階 53.63坪
- 17階 28.15坪
- 18階 108.6坪
- 18階 162.97坪
- 18階 162.98坪
- 18階 28.15坪
- 19階 81.78坪
- 19階 108.6坪
- 19階 26.81坪
- 19階 162.97坪
- 19階 28.15坪
- 19階 53.63坪
- 19階 81.78坪
- 26階 325.95坪
- 27階 325.95坪
大阪最古の高層オフィスビルは、今なお現役です。
北浜 NEXU BUILD(北浜ネクスビルディング)の歴史は非常に古いです。
1971年1月に、大林組が新本社ビルとして北浜に建てた「大阪大林ビル」が当物件です。
大阪で初めて100メートルを超える高層オフィスビルとして全国的に話題になりました。
重厚感と存在感のある漆黒の外装から「黒ビル」と呼ばれ、当時は西日本で一番高いビルでした。
その後売却され、賃貸オフィスビルとして生まれ変わり、都度リニューアルや大規模改修を行いながら、今なお現役で稼働しています。
仲介実績有
北浜 NEXU BUILD(北浜ネクスビルディング)には、仲介実績が複数御座います。
その中の一つの事例をご紹介いたします。
老舗のIT企業の創業50周年のメモリアル移転にお選びいただきました。
竣工年数は経過しているものの、耐震含めて問題が無く、北浜エリアの中ではトップクラスのビルグレードを誇るため、本社の周年記念移転に相応しいとの事でお選びいただきました。
その他の事例も、やはりランドマーク性やビルグレード、そしてリニューアルされた快適な設備面をご評価き、ご契約頂きました。

































