WAKITA堺筋本町ビルの賃貸オフィス・貸事務所【募集情報】
最終更新日:2026/04/01
- WAKITA堺筋本町ビル
- 大阪市中央区本町1-7-7
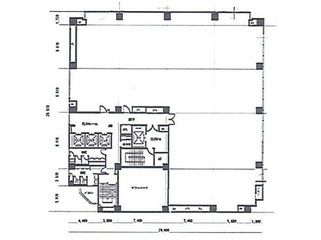
- 竣工/1991年5月 耐震基準/新耐震基準 基準階面積/186坪 地上12階 地下1階建て
WAKITA堺筋本町ビルは、堺筋本町駅から徒歩1分の大型オフィスビルです。角立地のため、どのお部屋も明るく開放的です。エントランスや共用部は清潔感があり、周辺には店舗も多く便利な環境です。
ご興味のある区画を検討中リストに加え、まとめてお問合せ頂けます。
| 検討中リスト | 階 | 面積 | 賃料+共益費 坪単価 |
敷金・保証金 | 入居日 | 検討中リスト | 空室確認日 |
|---|---|---|---|---|---|---|---|
|
12階
1202先行有 |
57.92坪
191.48m²
|
相談
|
10ヶ月
|
2026年7月 | 2026/03/05 |
当日内見希望もよろこんで!
※管理会社様等、物件側の事情でご希望に沿えない場合もございます。
- ご希望の募集区画が無い場合、募集が掛かった際にすぐにご紹介いたします。
- ちなみに、ネット非掲載なだけで、隠し床として存在する場合もございます。
- 現在の区画を分割するなどして、造れる可能性もございます。
- 勿論、類似物件のご紹介もご希望頂ければ喜んでさせて頂きます。
当サイトはご入居希望者様向けのサイトです。ご入居に関するお問合せ以外はお答えいたしかねます
WAKITA堺筋本町ビル物件情報
- 住所
- 大阪市中央区本町1-7-7
- 最寄駅
-
大阪メトロ堺筋線 堺筋本町駅徒歩1分
大阪メトロ御堂筋線 本町駅徒歩6分
大阪メトロ谷町線 谷町四丁目駅徒歩11分
大阪メトロ堺筋線 北浜駅徒歩12分 - 竣工
- 1991年5月
- 耐震
- 新耐震基準
- 階数
- 地上12階 地下1階
- 用途
- 事務所
- 構造
- SRC造
- エレベーター
- 4 基
- 空調
- 個別空調
- OAフロア
- その他
- 基準階天井高
- 2500mm
- 光ファイバー
- 有り
- トイレ
- 男女別・室外
- 機械警備
- 有り
- 駐車場
- 有り
過去募集していた区画
- 1階 111.52坪
- 2階 58.67坪
- 2階 58.43坪
- 2階 58.2坪
- 3階 185.51坪
- 3階 124.06坪
- 3階 29.46坪
- 4階 124.06坪
- 4階 59.67坪
- 4階 61坪
- 5階 29.46坪
- 6階 185.06坪
- 6階 62.13坪
- 6階 185.51坪
- 7階 62.56坪
- 8階 59.67坪
- 8階 59.67坪
- 8階 63.63坪
- 8階 92.42坪
- 8階 63.03坪
- 8階 121.88坪
- 8階 121.88坪
- 9階 61坪
- 9階 29.46坪
- 9階 31.54坪
- 11階 61坪
- 11階 29.46坪
- 12階 56.66坪
- 12階 119.27坪
- 12階 59.67坪
- 12階 175.93坪


















