「イケガミサウスビル」には現在公開できる募集区画がございません。最新の募集状況のご確認、もしくは類似物件のご提案は、こちらよりお問い合わせ下さい。
当日内見希望もよろこんで!
※管理会社様等、物件側の事情でご希望に沿えない場合もございます。
- ご希望の募集区画が無い場合、募集が掛かった際にすぐにご紹介いたします。
- ちなみに、ネット非掲載なだけで、隠し床として存在する場合もございます。
- 現在の区画を分割するなどして、造れる可能性もございます。
- 勿論、類似物件のご紹介もご希望頂ければ喜んでさせて頂きます。
当サイトはご入居希望者様向けのサイトです。ご入居に関するお問合せ以外はお答えいたしかねます
イケガミサウスビル物件情報
- 住所
- 大阪市中央区本町3-2-6
- 最寄駅
-
大阪メトロ御堂筋線 本町駅徒歩3分
大阪メトロ堺筋線 堺筋本町駅徒歩4分 - 竣工
- 1989年7月
- 耐震
- 新耐震基準
- 階数
- 地上9階 地下1階
- 用途
- 事務所 / その他
- 構造
- SRC造
- エレベーター
- 1 基
- 空調
- 個別空調
- OAフロア
- OAフロア / タイルカーペット
- 基準階天井高
- 2500mm
- 光ファイバー
- 有り
- トイレ
- 男女別・室外
- 機械警備
- 有り
- 駐車場
- 無し
過去募集していた区画
- 1階 38.87坪
- 2階 63坪
- 3階 84.45坪
- 3階 66.9坪
- 3階 74.4坪
- 4階 37.62坪
- 4階 37.62坪
- 4階 35.27坪
- 4階 45.24坪
- 5階 37.62坪
- 5階 37.62坪
- 5階 35.27坪
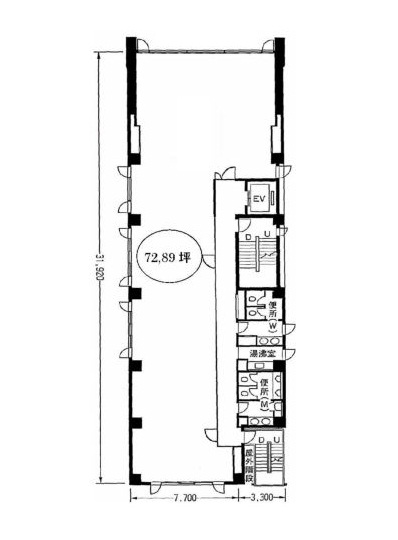
- 6階 72.89坪
- 6階 90.47坪
- 7階 72.89坪
- 8階 35.27坪
- 8階 37.62坪
- 9階 16.2坪











