当日内見希望もよろこんで!
※管理会社様等、物件側の事情でご希望に沿えない場合もございます。
- ご希望の募集区画が無い場合、募集が掛かった際にすぐにご紹介いたします。
- ちなみに、ネット非掲載なだけで、隠し床として存在する場合もございます。
- 現在の区画を分割するなどして、造れる可能性もございます。
- 勿論、類似物件のご紹介もご希望頂ければ喜んでさせて頂きます。
当サイトはご入居希望者様向けのサイトです。ご入居に関するお問合せ以外はお答えいたしかねます
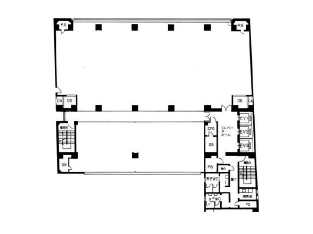
住友生命本町第2ビル物件情報
- 住所
- 大阪市中央区本町4-4-24
- 最寄駅
- 大阪メトロ御堂筋線 本町駅徒歩2分
- 竣工
- 1979年8月
- 耐震
- 新耐震基準相当
- 階数
- 地上11階 地下1階
- 用途
- 事務所
- 構造
- SRC造
- エレベーター
- 3 基
- 空調
- 個別空調 / セントラル空調
- OAフロア
- OAフロア
- 基準階天井高
- 2450mm
- 光ファイバー
- 有り
- トイレ
- 男女別・室外
- 機械警備
- 有り
- 駐車場
- 有り
過去募集していた区画
- 1階 145.83坪
- 3階 14.38坪
- 3階 51坪
- 3階 10.44坪
- 5階 25.83坪
- 5階 25.17坪
- 5階 52.41坪
- 5階 52.67坪
- 5階 24.82坪
- 5階 27.84坪
- 7階 21.76坪
- 8階 10.44坪
- 8階 76.18坪
- 8階 13.46坪
- 8階 14.38坪
- 8階 27.23坪
- 8階 52.4坪
- 8階 13.48坪
- 9階 10.44坪
- 9階 51坪
- 9階 14.38坪
- 9階 25.83坪
- 9階 25.17坪
- 9階 13.45坪

















