ご興味のある区画を検討中リストに加え、まとめてお問合せ頂けます。
| 検討中リスト | 階 | 面積 | 賃料+共益費 坪単価 |
敷金・保証金 | 入居日 | 検討中リスト | 空室確認日 |
|---|---|---|---|---|---|---|---|
|
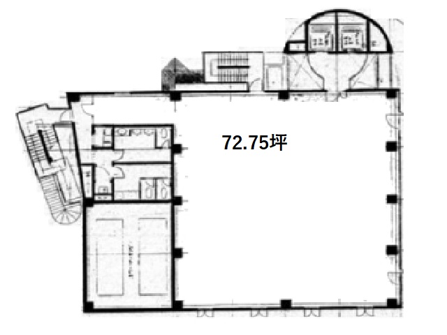
4階
|
72.75坪
240.51m²
|
相談
|
12ヶ月
|
2026年2月 | 2026/02/25 | ||
|
5階
|
72.75坪
240.51m²
|
相談
|
12ヶ月
|
即日 | 2026/02/25 |
当日内見希望もよろこんで!
※管理会社様等、物件側の事情でご希望に沿えない場合もございます。
- ご希望の募集区画が無い場合、募集が掛かった際にすぐにご紹介いたします。
- ちなみに、ネット非掲載なだけで、隠し床として存在する場合もございます。
- 現在の区画を分割するなどして、造れる可能性もございます。
- 勿論、類似物件のご紹介もご希望頂ければ喜んでさせて頂きます。
当サイトはご入居希望者様向けのサイトです。ご入居に関するお問合せ以外はお答えいたしかねます
脇田京橋第1ビル物件情報
- 住所
- 大阪市都島区東野田町2-5-1
- 最寄駅
- JR大阪環状線 京橋駅徒歩2分
- 竣工
- 1989年3月
- 耐震
- 新耐震基準
- 階数
- 地上9階 地下1階
- 用途
- 事務所
- 構造
- SRC造
- エレベーター
- 2 基
- 空調
- 個別空調
- OAフロア
- その他
- 基準階天井高
- 光ファイバー
- 有り
- トイレ
- 男女別・室内
- 機械警備
- 有り
- 駐車場
- 有り
過去募集していた区画
- 6階 72.75坪
- 8階 72.75坪




