「京橋大発ビル」には現在公開できる募集区画がございません。最新の募集状況のご確認、もしくは類似物件のご提案は、こちらよりお問い合わせ下さい。
当日内見希望もよろこんで!
※管理会社様等、物件側の事情でご希望に沿えない場合もございます。
- ご希望の募集区画が無い場合、募集が掛かった際にすぐにご紹介いたします。
- ちなみに、ネット非掲載なだけで、隠し床として存在する場合もございます。
- 現在の区画を分割するなどして、造れる可能性もございます。
- 勿論、類似物件のご紹介もご希望頂ければ喜んでさせて頂きます。
当サイトはご入居希望者様向けのサイトです。ご入居に関するお問合せ以外はお答えいたしかねます
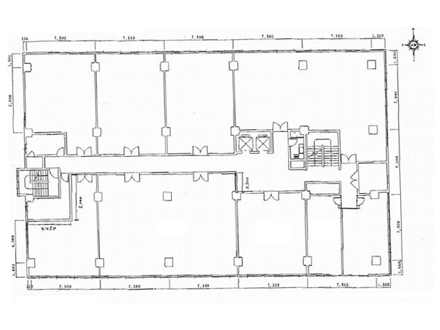
京橋大発ビル物件情報
- 住所
- 大阪市都島区片町2-2-40
- 最寄駅
- JR大阪環状線 京橋駅徒歩3分
- 竣工
- 1972年7月
- 耐震
- 旧耐震基準
- 階数
- 地上9階
- 用途
- 事務所
- 構造
- SRC造
- エレベーター
- 2 基
- 空調
- 個別空調
- OAフロア
- タイルカーペット / Pタイル
- 基準階天井高
- 光ファイバー
- 無し
- トイレ
- 男女別・室外
- 機械警備
- 有り
- 駐車場
- 有り
過去募集していた区画
- 3階 12.5坪
- 3階 30坪
- 3階 96坪
- 3階 23.5坪
- 3階 60坪
- 4階 15坪
- 4階 30坪
- 4階 15坪
- 4階 23坪
- 5階 30坪
- 5階 23.5坪
- 5階 34.5坪
- 6階 58坪
- 6階 16.5坪
- 7階 16.5坪
- 7階 30坪
- 7階 15坪
- 7階 34.5坪
- 7階 11坪
- 8階 30坪
- 8階 58坪
- 8階 88坪
- 8階 58坪
- 9階 23坪
- 9階 34.5坪
- 9階 30坪
























