新大阪ビル東館の賃貸オフィス・貸事務所【募集情報】
最終更新日:2026/02/18
- 新大阪ビル東館
- 大阪市東淀川区東中島1-17-18
- 竣工/1986年7月 耐震基準/新耐震基準 基準階面積/73坪 地上9階 建て
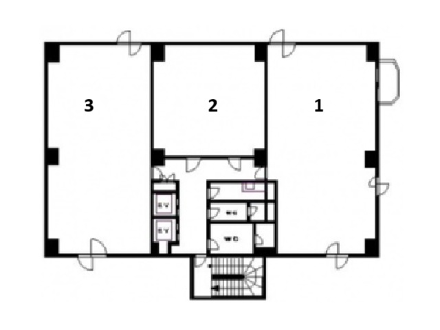
新大阪駅東口から徒歩約3分のオフィスビル、東口はJR・新幹線の乗り場が近く、よく使われる企業様には特におすすめできます。エレベーター2基あり、男女別のトイレありと使い勝手の良い物件です。
「新大阪ビル東館」には現在公開できる募集区画がございません。最新の募集状況のご確認、もしくは類似物件のご提案は、こちらよりお問い合わせ下さい。
当日内見希望もよろこんで!
※管理会社様等、物件側の事情でご希望に沿えない場合もございます。
- ご希望の募集区画が無い場合、募集が掛かった際にすぐにご紹介いたします。
- ちなみに、ネット非掲載なだけで、隠し床として存在する場合もございます。
- 現在の区画を分割するなどして、造れる可能性もございます。
- 勿論、類似物件のご紹介もご希望頂ければ喜んでさせて頂きます。
当サイトはご入居希望者様向けのサイトです。ご入居に関するお問合せ以外はお答えいたしかねます
新大阪ビル東館物件情報
- 住所
- 大阪市東淀川区東中島1-17-18
- 最寄駅
-
JR東海道本線 新大阪駅徒歩3分
阪急京都本線 崇禅寺駅徒歩11分
JR東海道本線 東淀川駅徒歩14分
大阪メトロ御堂筋線 西中島南方駅徒歩14分 - 竣工
- 1986年7月
- 耐震
- 新耐震基準
- 階数
- 地上9階
- 用途
- 事務所
- 構造
- S造
- エレベーター
- 2 基
- 空調
- 個別空調
- OAフロア
- OAフロア
- 基準階天井高
- 光ファイバー
- 有り
- トイレ
- 男女別・室外
- 機械警備
- 有り
- 駐車場
- 無し
過去募集していた区画
- 2階 21.28坪
- 3階 22.15坪
- 4階 44.22坪
- 4階 72.99坪
- 4階 22.15坪
- 5階 12.76坪
- 5階 28.77坪
- 5階 45.35坪
- 5階 22.15坪
- 6階 22.15坪
- 6階 21.28坪
- 7階 13.25坪
- 8階 16.58坪
- 8階 16.58坪
- 8階 22.15坪
- 9階 27.64坪
- 9階 22.15坪













